Apartamento T2 Sveti Petar na Moru, Sveti Filip i Jakov

€ 279.300
2
79 m²
r/c
Terraço

Nota

Anúncio atualizado em 03/03/2026
Descrição

referência: EUROVILLA-702284

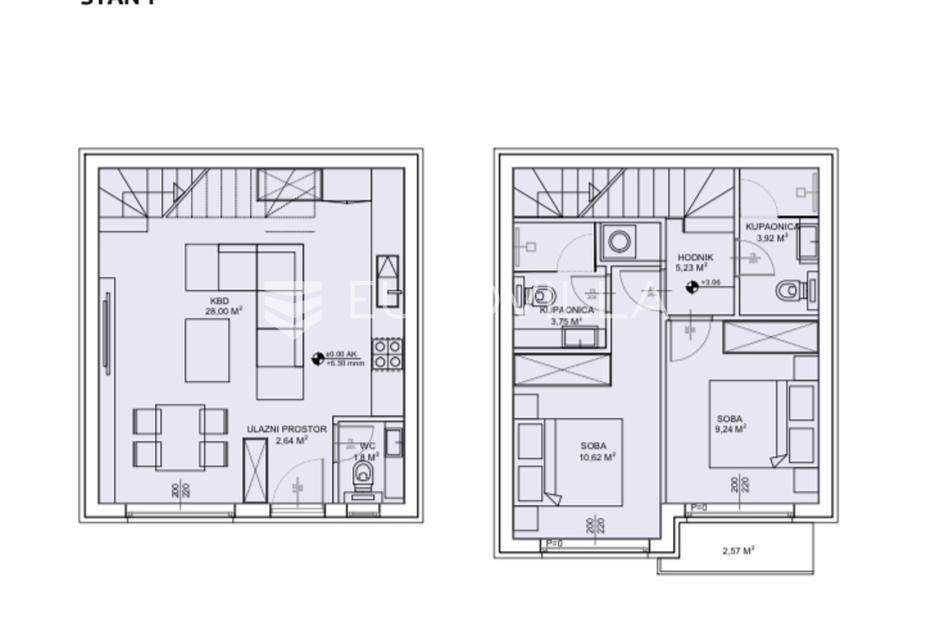
U predivnom malenom mjestu Sv. Petar na Moru gradi se moderni stambeni objekt s 9 stambenih jedinica na udaljenosti od plaže od 180 m.Dvoetažni stan S1 koji se nalazi u prizemlju i na prvom katu objekta površine 72,55 m2, sastoji se od prostranog dnevnog prostora površine 28 m2 (kuhinja, blagovaonica i dnevni boravak), dvije spavaće sobe površina 10 m2 i 9 m2, dvije kupaonice, lođe i natkrivene terase.Stanu pripada vrt površine 44 m2 i vanjsko parkirno mjesto.Stan će biti opremljen klima uređajima u spavaćim sobama i dnevnom prostoru. U kupaonicama će biti postavljeno podno grijanje a podne obloge će biti od laminat parketa ili keramičkih pločica. Stakla su troslojna a vanjska izolacija je od 10 cm stiropora.Ukupna obračunska površina stana je 79,80 m2.Objekt je orijentacije jug.Predviđeni završetak radova i useljenje je do kraja 2027 godine.Malo o lokaciji: mjesto Sveti Petar na Moru je dio općine Sveti Filip i Jakov i udaljen je 20 km jugoistočno od grada Zadra i svega 8 km sjeverozapadno od starog kraljevskog grada Biograd na Moru.U neposrednoj blizini nalaze se prekrasne plaže a u akvatoriju mjesta se nalazi nekoliko malih otočića zbog čega je ovo mjesto zahvalno za ljubitelje brodskih izleta.Na području općine Sveti Filip i Jakov poznati su vrijedni arheološki nalazi i sakralni spomenici, te karakteristični autentični lokaliteti. Cjelokupno područje općine predstavlja izuzetnu arheološku cjelinu pa je poželjna destinacija za sve ljubitelje istraživanja prirode i bogate prošlosti.Dodatne informacije - udaljenosti od važnijih lokacija:More: 180 m / Plaža: 180 m / Zadar 20 km / Zračna luka 15 kmKupovina: 100 m / restoran: 100 m / ljekarna 5 km / centar mjesta 200 mZa sva dodatna pitanja stojim na raspolaganju.... Više na eurovilla.hr, ID: 702284
Se quiser saber mais, pode falar com Domagoj Zekan.
Características
Tipologia
Apartamento
Contrato
Venda
Andar
Rés-do-chão
Superfície
79 m²
Quartos
2
Quartos
2
Terraço
Sim
Detalhe da superfície

Habitação

Andar
Rés-do-chão
Superfície
79,8 m²
Coeficiente
100%
Tipo de superfície
Principal
Sup comercial
79,8 m²
Informações de preço
Preço
€ 279.300
Preço por m²
3.535 €/m²
Eficiência energética
  • Estado

    Novo / Em construção
  • Certificação energética

    Livre
Planta
Descubra cada canto da propriedade
+12
Opções adicionais

Contactar o anunciante

Ou