Apartamento T2 Cres, Cres

€ 415.000
2
81 m²
3
Terraço

Nota

Anúncio atualizado em 03/03/2026
Descrição

referência: EUROVILLA-866361

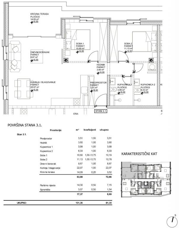
Grad Cres, Centar, trosoban stan na odličnoj lokaciji, NOVOGRADNJA.U samom centru grada Cresa, na svega 100 metara od mora i u neposrednoj blizini povijesne gradske jezgre, smješten je ovaj atraktivan i moderno koncipiran trosoban stan s krovnom terasom, unutar suvremene poslovno-stambene zgrade visoke kvalitete gradnje.Stan se nalazi na trećem katu zgrade te ima ukupnu obračunsku površinu 81,35 m², dok stvarna površina stana s pripadajućim dijelovima iznosi 101,36 m². Sastoji se od ulaznog prostora i hodnika, dvije kupaonice, dvije spavaće sobe, dnevnog boravka povezanog s kuhinjom i blagovaonicom te krovne terase površine 14,09 m², koja predstavlja iznimnu vrijednost ove nekretnine i pruža ugodan prostor za boravak na otvorenom.Stanu pripada i spremište u suterenu te parkirno mjesto u podzemnoj garaži, što predstavlja značajnu prednost u centru grada.Stan je projektiran s naglaskom na funkcionalnost i udobnost, a opremljen je kvalitetnim materijalima i modernim sanitarijama, podnim grijanjem, PVC stolarijom te griljama za zaštitu od sunca.Zgrada se prostire kroz pet etaža i obuhvaća podzemnu garažu u suterenu, tri poslovna prostora u prizemlju te ukupno 14 stanova raspoređenih na tri gornje etaže. Nalazi se na iznimnoj lokaciji u samom srcu Cresa, okružena trgovinama, restoranima, kafićima, kulturnim i zabavnim sadržajima, uz odličnu dostupnost javnog prijevoza.Ova nekretnina predstavlja izvrsnu priliku za stanovanje, ali i kao investicija za turistički ili dugoročni najam, zahvaljujući svojoj lokaciji, kvaliteti gradnje i funkcionalnom rasporedu.Za dodatne informacije slobodno nas kontaktirajte!... Više na eurovilla.hr, ID: 866361
Se quiser saber mais, pode falar com Borna Radović.
Características
Tipologia
Apartamento
Contrato
Venda
Andar
3
Superfície
81 m²
Quartos
2
Quartos
2
Terraço
Sim
Detalhe da superfície

Habitação

Andar
3
Superfície
81,4 m²
Coeficiente
100%
Tipo de superfície
Principal
Sup comercial
81,4 m²
Informações de preço
Preço
€ 415.000
Preço por m²
5.123 €/m²
Eficiência energética
  • Estado

    Novo / Em construção
  • Certificação energética

    Livre
Planta
Descubra cada canto da propriedade
+6
Opções adicionais

Contactar o anunciante

Ou