Apartamento T2 Centar, Velika Gorica

€ 214.676
2
63 m²
r/c

Nota

Anúncio atualizado em 03/03/2026
Descrição

referência: EUROVILLA-894124

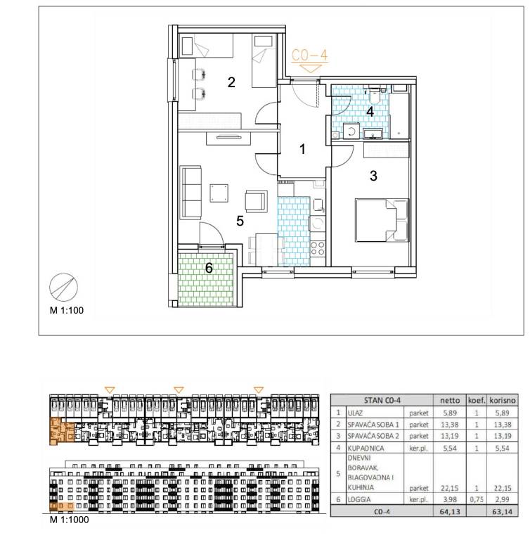
Trosoban stan površine 63,14 m2 smješten u prizemlju.Stan C0-4 sastoji se od ulaza, 2 spavaće sobe, kupaonice, dnevnog boravka, kuhinje s blagovaonicom, loggije.Velika Gorica, projekt stambene novogradnje namijenjen stalnom stanovanju, koji obuhvaća 91 stambenu jedinicu. U sklopu zgrade osigurano je ukupno 182 garažnih i parkirnih mjesta, od čega je 28 garažnih mjesta smješteno u prizemlju, 97 garažnih i parkirnih mjesta u podzemnoj etaži te dodatnih 57 parkirnih mjesta na razini terena.Uz kupnju stana obavezna je kupnja garažnog mjesta na -1 etaži po cijeni od 25.000,00 EUR ili garažnog mjesta na 0 etaži po cijeni od 30.000,00 EUR zajedno s parkirnim garažnim mjestom po cijeni od 18.000,00 EUR ili vanjskim parkirnim mjestom po cijeni od 10.000,00 EUR. Dakle, garažno mjesto na -1 etaži ili garažno mjesto na 0 etaži + garažno parkirno mjesto ili vanjsko parkirno mjesto.Građevina je projektirana kao armiranobetonska konstrukcija, međusobno povezana zidovima i gredama, s punim armiranobetonskim stropnim pločama i ravnim krovom. Vertikalni konstruktivni sustav čine armiranobetonski zidovi debljine 20 cm izvedeni kroz sve etaže, dok horizontalni sustav čine armiranobetonske ploče debljine 20 cm.Pročelje je predviđeno s toplinskom izolacijom debljine 15 cm u ETICS sustavu, izvedenom od EPS-a, a u zonama požarnih prekida, u kontaktu sa stubištem i na podgledu prizemlja od mineralne vune iste debljine. Završna obrada izvodi se armiranom mrežicom, gletanjem i završnim slojem u boji i teksturi prema projektu. Vanjska stolarija predviđena je kao PVC, u tonu definiranom projektom.Krov je projektiran kao ravni neprohodni krov, a svi slojevi izvedeni su u skladu s projektom fizike zgrade. Unutarnji pregradni zidovi izvode se kao gipskartonski, debljine 10 do 20 cm, ovisno o namjeni prostora, uz primjenu potrebne zvučne izolacije gdje je to predviđeno. Zidne površine su završno obrađene soboslikarskim radovima u boji prema projektu.Podovi u stanovima izvode se kao plivajući sustav s toplinskom izolacijom od polistirena i cementnim estrihom. Završne podne obloge predviđene su prema namjeni prostora: keramika u sanitarijama, kuhinjama i na vanjskim površinama, a troslojni hrastov parket u dnevnim boravcima, blagovaonicama, ulaznim prostorima i spavaćim sobama. U ponudi su tri varijante keramičkih pločica.Grijanje je riješeno plinskim etažnim podnim sustavom. Stanovi su opremljeni klima uređajima marke Bosch, PVC stolarijom s električnim roletama, troslojnim hrastovim parketom te sobnim vratima proizvođača RV Križevci. Ulazna vrata u stanove su protuprovalna, proizvođača Kolnoa sa sustavom zaključavanja Multilock.Useljenje 05/27Za sva pitanja Vam stojimo na raspolaganju.... Više na eurovilla.hr, ID: 894124
Se quiser saber mais, pode falar com Dominik Kovač.
Características
Tipologia
Apartamento
Contrato
Venda
Andar
Rés-do-chão
Superfície
63 m²
Quartos
2
Quartos
2
Detalhe da superfície

Habitação

Andar
Rés-do-chão
Superfície
63,1 m²
Coeficiente
100%
Tipo de superfície
Principal
Sup comercial
63,1 m²
Informações de preço
Preço
€ 214.676
Preço por m²
3.408 €/m²
Eficiência energética
  • Estado

    Novo / Em construção
  • Certificação energética

    Livre
Planta
Descubra cada canto da propriedade
+3
Opções adicionais

Contactar o anunciante

Ou