Apartamento T2 novo, primeiro andar, Seget

€ 235.000
2
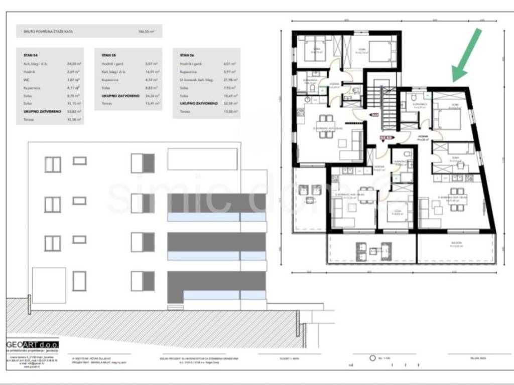
62 m²
1
1

Nota

Anúncio atualizado em 07/03/2026
Descrição

This description has been translated automatically and may not be accurate

referência: 3624-1

We mediate in the sale of a new apartment in Seget Donji, with a total area of 65m2, or 62 m2 of net usable area when calculating the coefficients of the property. It is located on the first floor of the building and is oriented southeast. The apartment consists of a bathroom, 2 bedrooms, a living room and a spacious balcony from which you can see the beautiful surroundings and the sea. The apartment is well equipped, has underfloor heating throughout the entire area, air conditioning and an associated parking space. The location of the building is 1.5 km from the center of Trogir, 1.2 km from shops, cafes and the beach and a 10-minute drive from the airport. The location is ideal for living but also as a rental. The expected completion of the works is summer 2026.

Viewing this property is possible only with the signing of our standard agency agreement, which is the basis for further actions related to the sale of real estate, all in accordance with the Law on Data Protection and the Real Estate Brokerage Act.
Se quiser saber mais, pode falar com Marija Paić.
Características
Tipologia
Apartamento
Contrato
Venda
Andar
1 andar
Superfície
62 m²
Quartos
2
Casas de banho
1
Ar condicionado
Centralizado, frio/quente
Informações de preço
Preço
€ 235.000
Preço por m²
3.790 €/m²
Eficiência energética
  • Estado

    Novo / Em construção
  • Ar condicionado

    Centralizado, frio/quente
  • Certificação energética

    Não classificável
Descubra cada canto da propriedade
+3
Opções adicionais

Contactar o anunciante

Ou