Apartamento T3 Dražice, Jelenje, Jelenje

€ 258.000
3
77 m²
1
3
Não
Varanda

Nota

Anúncio atualizado em 03/04/2026
Descrição

This description has been translated automatically and may not be accurate

referência: 300421024-910

RE/MAX centar nekretnine highlights a new building in Dražice (2026) from its offer, which has a total of 20 apartments.
The microlocation is quiet, with plenty of greenery and nature, yet close to schools, shops and public transport, with good transport connections to Rijeka.
The building has a 12 cm thick thermal facade, consists of a ground floor and 3 floors, with 5 apartments on each floor.
The apartments are one- and two-bedroom, ranging in size from 50 m2 to 78 m2.
Each apartment has a parking space, all apartments have access to a covered loggia, and some apartments on the ground floor also have a garden.
Heating and cooling are provided by Mitsubishi air conditioners with a Wi-Fi module in all rooms and the living room, while the bathrooms have underfloor electric heating or a bathroom radiator.
The apartments are sold on a "turnkey" basis (without furniture and bathrooms), and in addition to the above, they are also equipped with PVC joinery with aluminum shutters and triple-layer glass in the living room operated by an electric button, and a combination of ceramic tiles and parquet as floor coverings.

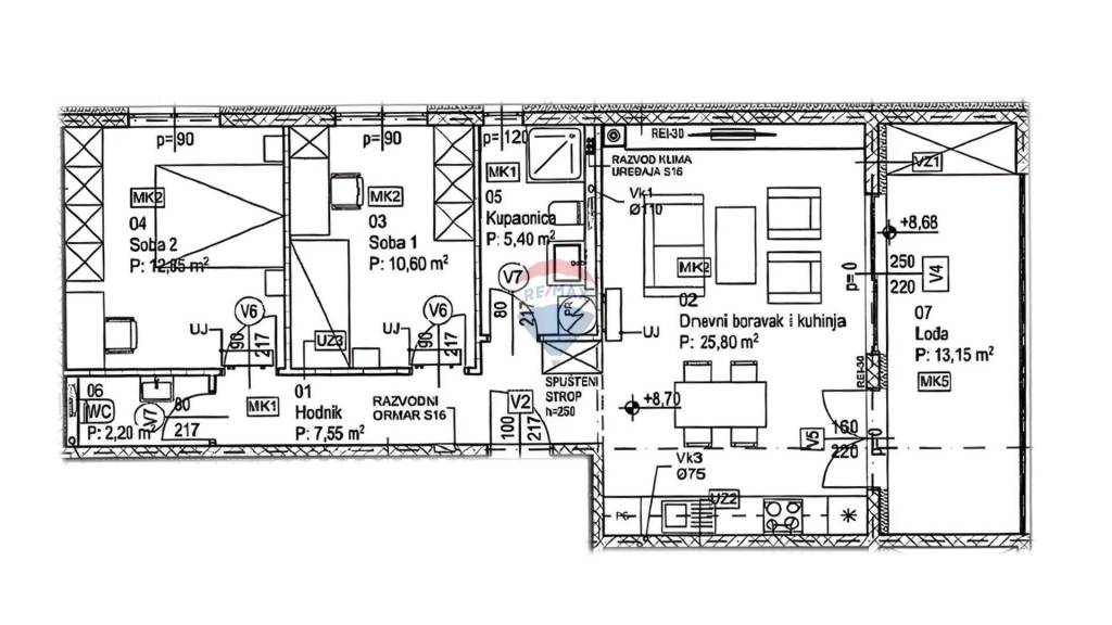
This apartment S16, with an area of ​​77.55 m2, is located on the third floor and consists of: 2 bedrooms, a living room with kitchen and dining area with access to a covered loggia, bathroom, separate toilet and hallway.
The apartment has 1 parking space.

The price includes VAT, the buyer is exempt from paying real estate tax. In the case of purchasing from a company registered in Croatia, a full VAT refund is possible after the sale.
The planned move-in is in April 2027.
The payment system is a 10% down payment upon signing the Preliminary Agreement, while the rest of the purchase price is paid after the Usage Permit, so there is also the possibility of purchasing via credit.
There is still a limited number of apartments left, so don't wait.

ID CODE: 300421024-910

Vjeran Šaina
Prodajni predstavnik
Mob: +385 91 641 7001
Tel: +385 51 551 871
E-mail: v.saina@remax-opatija.hr
remax-centarnekretnina.com
Características
Tipologia
Apartamento
Contrato
Venda
Andar
3 andar
Andares do Edifício
3
Elevador
Não
Superfície
77 m²
Quartos
3
Quartos
2
Casas de banho
1
Varanda
Sim
Terraço
Não
Ar condicionado
Ar condicionado, frio/quente
Informações de preço
Preço
€ 258.000
Preço por m²
3.351 €/m²
Eficiência energética
  • Ano de construção

    2026
  • Ar condicionado

    Ar condicionado, frio/quente
  • Certificação energética

    Não classificável
Planta
Opções adicionais

Contactar o anunciante

Ou