Depósito para Renda

Preço sob consulta
15.516 m²
r/c

Nota

Anúncio atualizado em 31/03/2026
Descrição

referência: JK25037

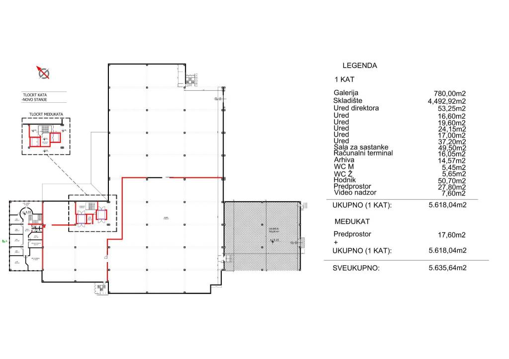
Nudimo za pod-najam industrijski objekt u Dugopolju, ukupne površine 15 516 m² pogodan za logistiku, laku proizvodnju i e-trgovinu.
Iznajmljuje se u cijelosti za jednog klijenta jer ima puno regala i nije open space.
Ugovor o podzakupu se sklapa do 31.12.2030.

Tehnički podaci:
- komore u plus režimu: ukupno 863 m²
- komore u minus režimu: ukupno 868 m²
- 11 m visina

Ostale lokacije pogledajte na;
https://www.warehouser.hr/
Características
Contrato
Renda
Tipologia
Depósito
Superfície
15.516 m²
Andar
Rés-do-chão
Disponibilidade
Disponível a partir de 06/01/2026
Outras características
  • Entrada de automóveis
Detalhe da superfície

Depósito

Andar
Rés-do-chão
Superfície
15.516,0 m²
Coeficiente
100%
Tipo de superfície
Principal
Sup comercial
15.516,0 m²
Informações de preço
Preço
Preço sob consulta
Detalhes de custos
Fiança
Não indicado
Planta
Tlocrt 2
Tlocrt 1
Opções adicionais

Contactar o anunciante