map icon

Apartamento primeiro andar, Vodice

Vodice
€ 224.160
5+
70 m²
2
1

Nota

Anúncio atualizado em 18/03/2026
Descrição

referência: 1231-1

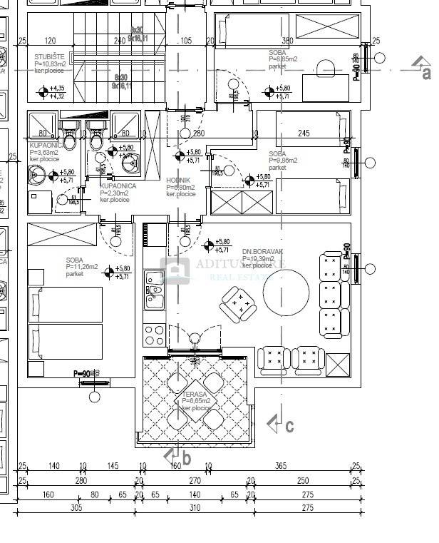
Na prodaju je komforan apartman na prvom katu stambene zgrade smještene na izuzetnoj lokaciji u Srimi, svega 220 metara od mora i uređene plaže. Objekt se nalazi ispod glavne ceste, što osigurava mir, privatnost i ugodan boravak bez buke idealno za odmor ili turistički najam.

O apartmanu (B6):

-Površina: 70,05 m
-Kat: 2. kat
-Parkirno mjesto: P12
-Dodatno: lođa

Raspored:
-dnevni boravak s kuhinjom i blagovaonicom (open space)
-tri spavaće sobe
-hodnik
-dvije kupaonice
-lođa

Apartman je izuzetno funkcionalan, s tri spavaće sobe što ga čini idealnim za veće obitelji ili turistički najam većeg kapaciteta.
Dodatna investicijska prilika:
U istoj zgradi nalaze se još dva apartmana, smještena jedan iznad drugoga, te postoji mogućnost kupnje sva tri stana zajedno.
Ovo predstavlja iznimnu priliku za investitore jer:
-apartmani već imaju uhodan turistički posao iznajmljivanja
-odlična popunjenost tijekom sezone
-mogućnost nastavka poslovanja bez dodatnih ulaganja
Za više informacija i dogovor oko razgledavanja, slobodno nas kontaktirajte.
Interni ID agencije: 1231
Ana Ivanda agent s licencom
+385 99 33 84 900
info@am-realestate.hr
Jelena Đukić agent s licencom
+385 98 983 2830
info@am-realestate.hr
Ana Matas
+385 99 164 1879
info@am-realestate.hr
Se quiser saber mais, pode falar com Ana Ivanda.
Características
Tipologia
Apartamento
Contrato
Venda
Andar
1 andar
Superfície
70 m²
Quartos
5+
Quartos
3
Casas de banho
2
Informações de preço
Preço
€ 224.160
Preço por m²
3.202 €/m²
Eficiência energética
  • Ano de construção

    2003
  • Certificação energética

    Não classificável
Descubra cada canto da propriedade
+8
Opções adicionais

Contactar o anunciante

Ou