Terreno para construção para Venda

€ 80.000
500 m²

Nota

Anúncio atualizado em 20/04/2026
Descrição

referência: 861

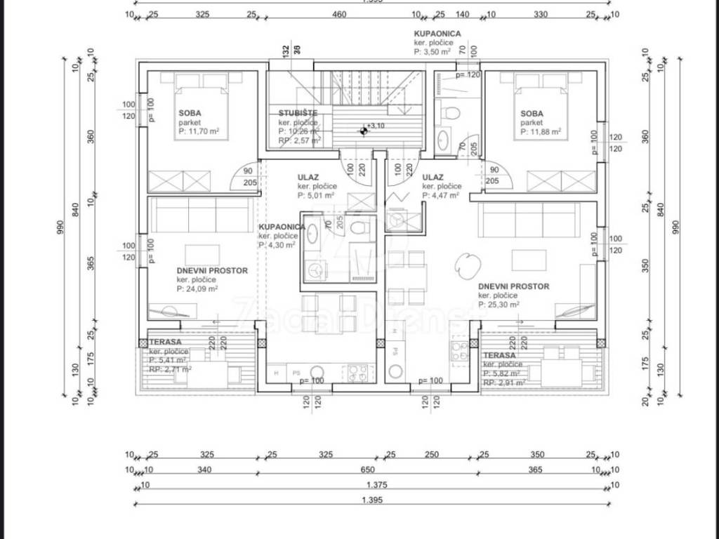
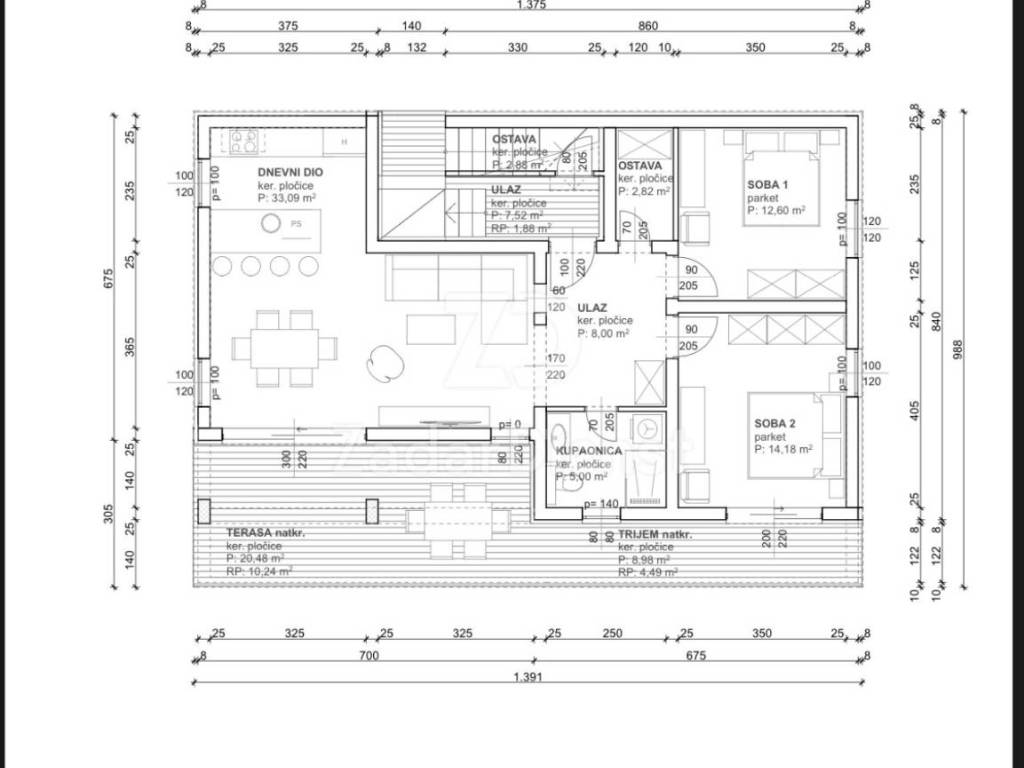
GRAĐEVINSKO ZEMLJIŠTE S GRAĐEVINSKOM DOZVOLOM I POGLEDOM NA MORE – MASLENICA

Na prodaju je atraktivno građevinsko zemljište površine 500 m², smješteno na mirnoj i vrlo poželjnoj lokaciji u Maslenici. Za parcelu je ishođena pravomoćna građevinska dozvola te izrađen projekt za izgradnju stambene zgrade s tri stambene jedinice (2B skupine) i bazenom, a svi komunalni doprinosi su u potpunosti plaćeni, što budućem vlasniku omogućuje odmah započeti gradnju.

Parcela je pravilnog oblika, dimenzija približno 24 × 20 metara, što omogućuje vrlo funkcionalno planiranje objekta i okućnice. Do zemljišta vodi asfaltirani pristupni put, dok se sva potrebna infrastruktura (struja, voda i ostali priključci) nalazi neposredno uz parcelu.

Lokacija je izuzetno povoljna – zemljište je udaljeno svega 300 metara zračne linije od mora, odnosno oko 700 metara lagane šetnje do uređene plaže. U neposrednoj blizini, unutar 500 metara, nalaze se svi važni sadržaji poput trgovina, kafića i restorana, što ovu nekretninu čini idealnom kako za privatnu gradnju, tako i za turističku investiciju.

ID CODE: 861

ZADAR DIENST d.o.o.
Mob: +385 91 422 0834
Tel: +385 23 779 897
E-mail: info@zadar-dienst.hr
www.zadar-dienst.hr
Características
Contrato
Venda
Tipologia
Terreno para construção
Superfície
500 m²
Informações de preço
Preço
€ 80.000
Preço por m²
160 €/m²
Descubra cada canto da propriedade
+9
Opções adicionais

Contactar o anunciante

Ou