Apartamento T3 Sukošan, Sukošan

€ 356.512
3
96 m²
2
r/c
Não
Varanda
Terraço

Nota

Anúncio atualizado em 20/03/2026
Descrição

This description has been translated automatically and may not be accurate

referência: 5564

Apartments for sale in residential buildings under construction in Sukošan. The property consists of 3 buildings with a total of 18 apartments. They extend to the basement, ground floor, and the 1st and 2nd floors.

BUILDING A
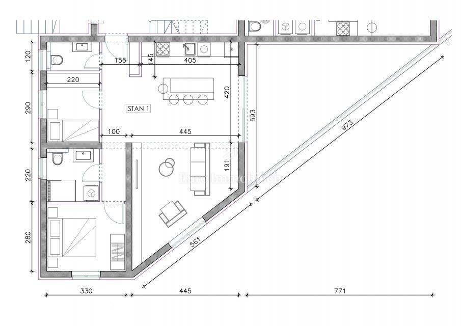
2ND FLOOR - S5 (corridor, toilet, kitchen + dining room, living room, entrance hall, two bedrooms, bathroom, loggia, roof terrace) - 111.41 m2 - EUR 356,512
S6 (hallway, two bathrooms, three bedrooms, hall, toilet, laundry room, kitchen + dining room + living room, balcony, roof terrace) - 132.27 m2 - EUR 423,272

BUILDING B - SOLD

BUILDING C

GROUND FLOOR - S1 (hallway, bedroom, kitchen + dining room + living room, bathroom, balcony) - 55.42 m2 - SOLD
S2 (hallway, two bathrooms, laundry room, two bedrooms, kitchen + dining room + living room, terrace / balcony) - 96.60 m2 - 270,480 EUR - SOLD
1ST FLOOR - S3 (hallway, bedroom, kitchen + dining room + living room, bathroom, balcony) - 55.42 m2 - SOLD
S4 (hallway, two bathrooms, laundry room, two bedrooms, kitchen + dining room + living room, terrace / balcony) - 96.60 m2 - 270,480 EUR - SOLD
2ND FLOOR - S5 (hallway, bedroom, kitchen + dining room + living room, bathroom, balcony, roof terrace) - 86.51 m2 - 276,832 EUR - SOLD
S6 (hallway, two bathrooms, laundry room, two bedrooms, kitchen + dining room + living room, terrace / balcony, roof terrace) - 122.92 m2 - EUR 393,328

All 3 buildings were built using a quality construction system and consist of an earthquake-resistant reinforced concrete structure. Internal walls and ceilings are made with finely smooth surfaces with millimeter tolerance. The external walls are well insulated with 10 cm of thermal insulation and contain, in addition to classic plaster, water-repellent finishing plaster in color. All apartments are equipped with high-quality PVC windows and doors with electric ALU blinds and mosquito nets. The external carpentry is installed in accordance with the RAL system and insulated, and gas-filled ISO glass is installed. The electrical installations are made according to the highest standard and contain a modern series of switches and sockets manufactured by TEM Modul. Internal and external lighting is solved with LED technology. Heating and cooling is solved with the help of quality air conditioning devices separately in each apartment. Hot water is heated using its own water heater in each apartment. Sanitary ware and sanitary equipment are from renowned European manufacturers. The apartments are not equipped with furniture except sanitary ware and sanitary equipment in the bathrooms. High quality porcelain ceramic tiles are installed in the bathrooms. The floors in each apartment are equipped with high-quality porcelain ceramic tiles, and the floors in the rooms are equipped with a water-repellent material similar to wood imitation laminate. Penthouse apartments in building A and C are additionally equipped with underfloor heating in the entire apartment, via a heat pump. Hot water is heated using solar systems on the roof and an electric boiler. Construction will begin in January 2024, while completion is scheduled for January 2025.

Provizija agencije za kupca iznosi 3% + PDV i plaća se u slučaju kupovine nekretnine kod zaključenja kupoprodajnog Ugovora.

ID CODE: 5564

Euro Immobilien d.o.o.
Mob: 00385 (0)99 444 0500
Tel: +385 51 220 024
E-mail: info@euro-immobilien.hr
www.euro-immobilien.hr
Características
Tipologia
Apartamento
Contrato
Venda
Andar
Rés-do-chão
Andares do Edifício
2
Elevador
Não
Superfície
96 m²
Quartos
3
Quartos
2
Casas de banho
2
Varanda
Sim
Terraço
Sim
Estacionamento, lugares de estacionamento
1 em garagem, 1 em estacionamento compartilhado
Aquecimento
Individualizado, de ar
Ar condicionado
Ar condicionado, frio/quente
Informações de preço
Preço
€ 356.512
Preço por m²
3.714 €/m²
Eficiência energética
  • Ano de construção

    2024
  • Aquecimento

    Individualizado, de ar
  • Ar condicionado

    Ar condicionado, frio/quente
  • Certificação energética

    Não classificável
Planta
Descubra cada canto da propriedade
+13
Opções adicionais

Contactar o anunciante

Ou