Vivenda familiar Malinska, Malinska-Dubašnica, Malinska-Dubašnica

€ 860.000
4
160 m²
3
Não
Terraço

Nota

Anúncio atualizado em 07/04/2026
Descrição

This description has been translated automatically and may not be accurate

referência: 7400

Surroundings of Malinska – new detached stone house of low-energy standard

In a quiet location near Malinska, approximately 2 km from the sea, construction of a detached rustic stone house with a swimming pool is planned. The plot area is approximately 500 m², of which about 350 m² will remain as landscaped garden after construction.
The house will be built using high-quality materials and equipment. It will feature electric underfloor heating, while the bedrooms will be fitted with high-quality parquet flooring. Windows and doors will be a combination of PVC and aluminium with shutters, and a traditional fireplace is planned in the living room. The façade will be clad in stone, emphasizing the rustic Mediterranean style.
The outdoor area will include a swimming pool with electrolysis and will be landscaped with old olive trees.
Construction is scheduled to begin in January 2026.
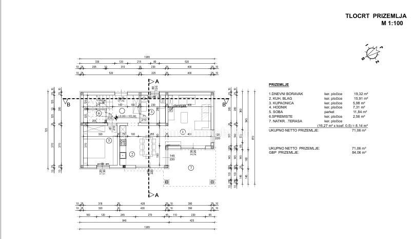
The ground floor consists of an open-plan living room, kitchen and dining area, a hallway, a bathroom, one bedroom and a storage room, as well as a spacious covered terrace.
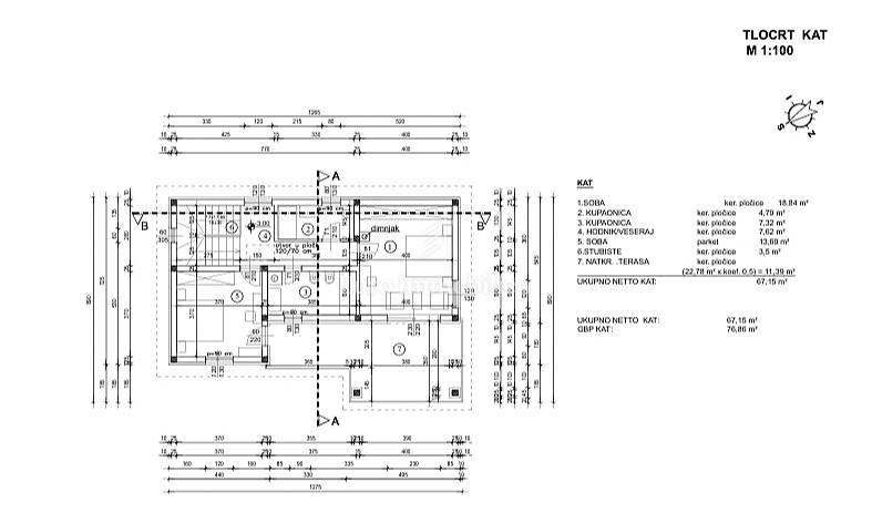
The upper floor comprises two bedrooms, two bathrooms, a hallway and a large shared covered balcony.
The total net living area is 138.21 m², while the gross area is 169.92 m².

VAT is included in the listed price, therefore the buyer is exempt from paying real estate transfer tax.

For any information or to arrange a viewing, feel free to contact us at +385994440660 or visit our office in Malinska at Dubašljanska 111.

Provizija agencije za kupca iznosi 3% + PDV i plaća se u slučaju kupovine nekretnine kod zaključenja kupoprodajnog Ugovora.

ID CODE: 7400

Euro Immobilien d.o.o.
Mob: 00385 (0)99 444 0660
Tel: +385 51 220 024
E-mail: info@euro-immobilien.hr
www.euro-immobilien.hr
Características
Tipologia
Vivenda familiar
Contrato
Venda
Elevador
Não
Superfície
160 m²
Quartos
4
Quartos
3
Casas de banho
3
Varanda
Não
Terraço
Sim
Estacionamento, lugares de estacionamento
2 em estacionamento compartilhado
Ar condicionado
Ar condicionado, frio/quente
Informações de preço
Preço
€ 860.000
Preço por m²
5.375 €/m²
Eficiência energética
  • Ano de construção

    2026
  • Ar condicionado

    Ar condicionado, frio/quente
  • Certificação energética

    Não classificável
Descubra cada canto da propriedade
+9
Opções adicionais

Contactar o anunciante

Ou