Terreno para construção para Venda

€ 360.000
806 m²

Nota

Anúncio atualizado em 24/03/2026
Descrição

referência: 3-74099

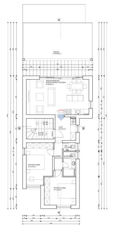
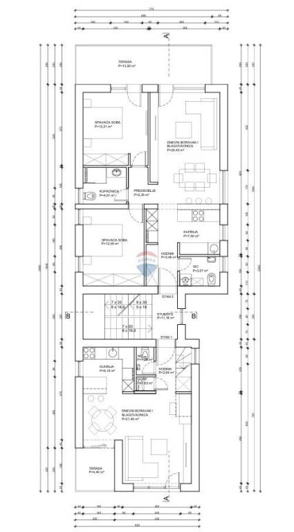
Na prodaju je građevinsko zemljište površine 806 m² smješteno na atraktivnoj i mirnoj lokaciji na Bijeniku, u Ulici Selišće.

Radi se o rijetkoj prilici na tržištu – zemljište dolazi s pravomoćnom građevinskom dozvolom za izgradnju moderne urbane vile s četiri stana.

Projekt uključuje:

4 stambene jedinice
4 garažna parkirna mjesta
4 vanjska parkirna mjesta
ukupna bruto razvijena površina (BRP): 400 m²

Ključne prednosti:

važeća građevinska dozvola – spremno za početak gradnje
plaćeni komunalni doprinosi
zatraženi svi priključci
izvedeni priključni šahtovi za vodu i odvodnju
plaćeno 50% priključka električne energije
kompletna projektna dokumentacija uključena u cijenu
uključene vizualizacije i projekt interijera

Zemljište se nalazi u izgrađenom i traženom dijelu grada, idealnom za razvoj manjeg stambenog projekta za prodaju ili dugoročni najam.

Vlasništvo:

uredno, bez tereta
prodavatelj je fizička osoba

ID CODE: 3-74099

Habitator nekretnine d.o.o.
Mob: +385 91 641 0062
Tel: +385 1 670 1704
E-mail: info@remax-centarnekretnina.hr
remax-centarnekretnina.com
Características
Contrato
Venda
Tipologia
Terreno para construção
Superfície
806 m²
Informações de preço
Preço
€ 360.000
Preço por m²
447 €/m²
Planta
Descubra cada canto da propriedade
+11
Opções adicionais

Contactar o anunciante

Ou