Vivenda plurifamiliar Privlaka, Privlaka

€ 560.000
4
133 m²
3
Não
Terraço

Nota

Anúncio atualizado em 06/05/2026
Descrição

This description has been translated automatically and may not be accurate

referência: 896

For sale, 2 modern semi-detached houses with private pool and sea view, 150 meters from the sea and the beach.
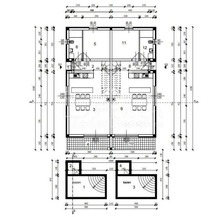
The houses have an identical layout with a total area of ​​133 m2 and consist of a ground floor and a first floor.
The price for each house separately is 560,000 euros.

On the ground floor there is; - hallway

- living room with kitchen and dining room

- bedroom

- bathroom

- spacious terrace

From the living room there is an exit to a beautiful terrace with a view of the sea.

On the first floor there are: - corridor
- 3 bedrooms
- 2 bathrooms
- terrace with sea view

One bedroom with its own bathroom has access to a covered balcony with a wonderful view of the sea.
Each house has 2 parking spaces. The bathrooms are equipped with underfloor heating.

The entire building will be equipped with a heating and cooling system through multisplit air conditioners.
In the living room, a chimney was installed as a wood heating option.
The pools are made of reinforced concrete and at the same time preparations will be made for heating the water inside the pool.

Privlaka is a small fishing and tourist town located on a spacious sandy peninsula nearby
Zadar and the royal city of Nin. Clean and clear sea and shallow sandy bays make it perfect for
family tourism.

ID CODE: 896

ZADAR DIENST d.o.o.
Mob: +385 91 422 0834
Tel: +385 23 779 897
E-mail: info@zadar-dienst.hr
www.zadar-dienst.hr
Características
Tipologia
Vivenda plurifamiliar
Contrato
Venda
Andares do Edifício
1
Elevador
Não
Superfície
133 m²
Quartos
4
Quartos
3
Casas de banho
3
Varanda
Não
Terraço
Sim
Ar condicionado
Ar condicionado, frio/quente
Informações de preço
Preço
€ 560.000
Preço por m²
4.211 €/m²
Eficiência energética
  • Ano de construção

    2024
  • Ar condicionado

    Ar condicionado, frio/quente
  • Certificação energética

    Não classificável
Descubra cada canto da propriedade
+10
Opções adicionais

Contactar o anunciante

Ou