Vivenda familiar Jadranovo, Crikvenica, Jadranovo, Crikvenica

€ 290.000
5+
190 m²
3+
Não
Varanda

Nota

Anúncio atualizado em 07/04/2026
Descrição

This description has been translated automatically and may not be accurate

referência: 3-74117

RE/MAX Centar Nekretnina presents a house for renovation in Jadranovo, located in an attractive and quiet area, less than 1 km from the sea and the town center.
This property in the Kvarner region represents an excellent opportunity for investment, tourist rental, or a family holiday home, with great transport connections to Rijeka and Crikvenica.

The house has a total area of 190 m² and 393 m² of yard, providing enough space for a garden, swimming pool, parking, and additional amenities. The property is southwest-oriented, ensuring plenty of natural light throughout the day.

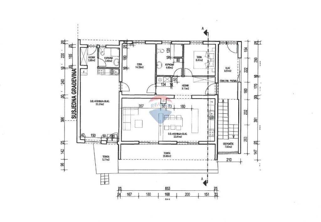
The property consists of two floors. On the ground floor, there is a spacious living room with dining area and kitchen, with access to a terrace, a hallway, and two bedrooms.
The upper floor is accessed via external stairs, where there are three bedrooms with en-suite bathrooms and a terrace accessible from two bedrooms, providing additional privacy and comfort.

Next to the main house, there is an auxiliary building which is functionally separated and consists of a living room with kitchen and dining area, a bathroom, and its own terrace, making it ideal for an apartment, guest unit, or additional tourist rental.

The property is sold with a building permit and project, which significantly facilitates and speeds up future works. The project includes 2 parking spaces, with the possibility of additional parking due to the spacious yard, as well as a planned swimming pool, further increasing the property's value.

This house offers exceptional potential for organizing three residential units – two larger in the main building and one smaller in the auxiliary building, which is ideal for tourism investment, apartments, or long-term rental.

All necessary infrastructure is already available on-site, ownership is clear (1/1), and heating and cooling are planned via air conditioning and underfloor heating, with pre-installations already in place.

In the immediate vicinity, there are beaches, cafés, restaurants, and shops, which further enhance the attractiveness of the location. Jadranovo is an increasingly sought-after destination for real estate purchases thanks to its peace, nature, and proximity to the sea, as well as quick connections to urban centers.

This renovation property in Jadranovo represents an excellent opportunity for anyone looking for a house with potential, a seaside investment, or a project for tourist rental in Kvarner.

ID CODE: 3-74117

Marko Krišto
Prodajni predstavnik
Mob: +385 91 641 0063
Tel: + 385 51 627 667
E-mail: m.kristo@remax-crikvenica.hr
remax-centarnekretnina.com
Características
Tipologia
Vivenda familiar
Contrato
Venda
Andares do Edifício
2
Elevador
Não
Superfície
190 m²
Quartos
5+
Quartos
5
Casas de banho
3+
Varanda
Sim
Terraço
Não
Estacionamento, lugares de estacionamento
1 em garagem
Informações de preço
Preço
€ 290.000
Preço por m²
1.526 €/m²
Eficiência energética
  • Certificação energética

    Não classificável
Planta
Descubra cada canto da propriedade
+28
Opções adicionais

Contactar o anunciante

Ou