1/13


Apartamento T3 Tribunj, Tribunj
€ 442.298
Anúncio atualizado em 31/03/2026
Descrição
referência: 252
ID CODE: 252
Ines Lovrić-Caparin
Voditelj ureda
Mob: +385 98 182 5019
Tel: 0981825019
E-mail: info@fenixnekretnine.hr
www.fenixnekretnine.hr
Características
- Tipologia
- Apartamento
- Contrato
- Venda
- Andar
- 2 andar
- Andares do Edifício
- 2
- Elevador
- Sim
- Superfície
- 102 m²
- Quartos
- 3
- Quartos
- 2
- Casas de banho
- 2
- Varanda
- Não
- Terraço
- Sim
- Estacionamento, lugares de estacionamento
- 2 em estacionamento compartilhado
- Ar condicionado
- Ar condicionado, frio/quente
Outras características
Informações de preço
- Preço
- € 442.298
- Preço por m²
- 4.336 €/m²
Eficiência energética
Ar condicionado
Ar condicionado, frio/quenteCertificação energética
Não classificável
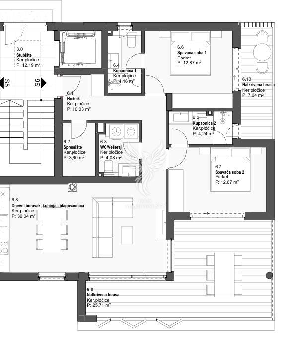
Planta

Descubra cada canto da propriedade
Opções adicionais