Vivenda familiar Ulica Miroslava Krleze, Staro Brestje, Zagreb

€ 330.000
4
584 m²
Terraço

Nota

Anúncio atualizado em 31/03/2026
Descrição

referência: EUROVILLA-449788

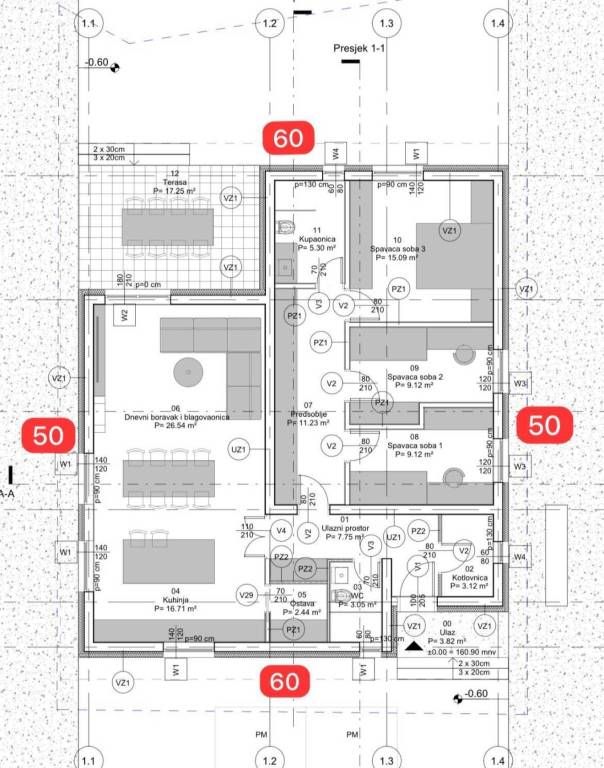
Rugvica, samostojeća kuća vrhunske kvalitete s okućnicom smještena u mirnom obiteljskom naselju u blizini Sesveta.Sastoji se od ulaznog hodnika, prostranog dnevnog boravka s kuhinjom, blagovaonicom te izlazom na natkrivenu terasu, predsoblja, tri spavaće sobe, kupaonice, kotlovnice i ostave.Mogućnost dodatnih soba/prostorija na tavanskom prostoru.Ukupna tlocrta površina iznosi 160 m2 s neto stambenom površinom 110,24 m2 te natkrivenom terasom od 17,25 m2.Projektirana je s naglaskom na energetsku učinkovitost i moderan način života.Podno grijanje u cijeloj kući, grijanje i hlađenje putem dizalice topline, optička mreža za brzi internet, instalacije za video nadzor, Geberit sanitarije, kvalitetna toplinska izolacija.Kuća je smještena na odličnoj lokaciji u mirnoj zoni, ali istovremeno dovoljno blizu grada i svih važnih sadržaja.Za dodatna pitanja stojimo na raspolaganju.... Više na eurovilla.hr, ID: 449788
Se quiser saber mais, pode falar com Sarah Ivanković.
Características
Tipologia
Vivenda familiar
Contrato
Venda
Andar
Rés-do-chão
Superfície
584 m²
Quartos
4
Quartos
4
Terraço
Sim
Detalhe da superfície

Habitação

Andar
Rés-do-chão
Superfície
584,0 m²
Coeficiente
100%
Tipo de superfície
Principal
Sup comercial
584,0 m²
Informações de preço
Preço
€ 330.000
Preço por m²
565 €/m²
Eficiência energética
  • Estado

    Novo / Em construção
  • Certificação energética

    Livre
Planta
Descubra cada canto da propriedade
+10
Opções adicionais

Contactar o anunciante

Ou