Terreno para construção para Venda

€ 249.000
1.029 m²

Nota

Anúncio atualizado em 12/04/2026
Descrição

referência: 1036

ATRAKTIVNO GRAĐEVINSKO ZEMLJIŠTE S DOZVOLOM I ZAPOČETOM GRADNJOM – LUN (NOVALJA, PAG)

Lokacija: Ličko-senjska županija, Novalja – Lun (Jakišnica)
Površina: 1.029 m²
Tip zemljišta: Građevinsko

Na jednoj od najljepših i najmirnijih lokacija u Jakišnici, nadomak Novalje na otoku Pagu, prodaje se izuzetno atraktivna građevinska parcela površine 1.029 m². Smještena na blago povišenom terenu, pruža očaravajući panoramski pogled na more te otoke Lošinj i Cres.
Udaljenost od mora i uređenih plaža iznosi svega 400–500 m, dok se do centra mjesta s restoranima, kafićima i trgovinom stiže za samo 2 minute.
Parcela nepravilnog i vrlo zanimljivog oblika osigurava dodatnu privatnost te omogućuje kreativno i moderno oblikovanje okućnice i vanjskih sadržaja.

Projekt i dozvola uključeni u cijenu
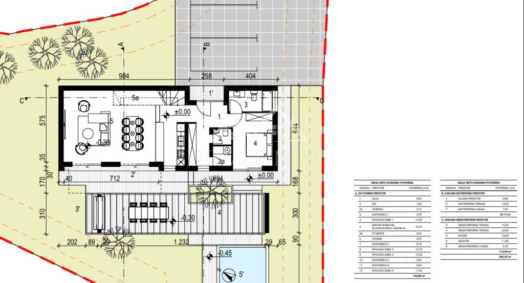
U cijenu je uključena pravomoćna građevinska dozvola i vrhunski arhitektonski projekt za moderno-mediteransku vilu s bazenom, ukupne neto površine cca 170 m².

Projekt uključuje:
4 prostrane spavaće sobe
4 luksuzne kupaonice (walk-in tuševi)
dodatni gostinjski WC
prostor za pranje i sušenje rublja
grijani bazen (7,5 × 3,5 m)
open space dnevni boravak, blagovaonicu i kuhinju
prostrano sunčalište i pergolu uz bazen

Dodatni potencijal
Unatoč planiranoj vili i bazenu, ostaje dovoljno prostora za:
lounge zonu
vanjsku blagovaonicu
sportske i rekreacijske sadržaje
dječje igralište
mediteranski vrt

Započeti radovi – velika prednost
izvedena septička jama
pripremni radovi za bazen
priprema terena za temelj kuće

Zašto je ovo odlična prilika?
odmah spremno za nastavak gradnje
bez čekanja dozvola
idealno za privatnu vilu ili turistički najam visoke kategorije
rijetka kombinacija: pogled + mir + dokumentacija + započeta gradnja

Dodatne informacije
vlasništvo uredno
direktan pristup s glavne ceste
uključen i projekt uređenja interijera (vrijednost cca 2.000 €)

Kontakt: Javite se za više informacija i dogovor oko razgledavanja.
Ne propustite ovu jedinstvenu priliku za investiciju ili gradnju luksuzne vile na jednoj od najpoželjnijih lokacija sjevernog Jadrana!

Kontakt:
Kristian Mikec (Direktor)
E-mail: info@homefinder.hr
Mob: 095 299 9996
www.homefinder.hr

ID CODE: 1036

Home finder d.o.o.
Mob: +385 95 299 9996
E-mail: info@homefinder.hr
www.homefinder.hr
Características
Contrato
Venda
Tipologia
Terreno para construção
Superfície
1.029 m²
Informações de preço
Preço
€ 249.000
Preço por m²
242 €/m²
Planta
Descubra cada canto da propriedade
+8
Opções adicionais

Contactar o anunciante

Ou