Vivenda familiar Poreč, Luka, Poreč

€ 721.000
4
120 m²
2
Não
Terraço

Nota

Anúncio atualizado em 29/04/2026
Descrição

This description has been translated automatically and may not be accurate

referência: ID02338

Poreč area – Modern single-storey house with pool near the sea, in a great location close to all amenities! New build!

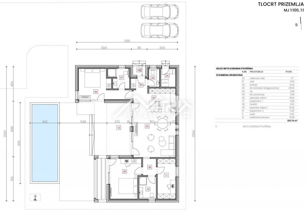
For sale is a modern single-storey house with a pool, with a total net living area of 120 m², located in a quiet residential area near Poreč, in close proximity to the sea and all essential amenities.

The house is laid out on one level. The central part consists of a spacious open-plan area combining the living room, dining area, and a fully equipped modern kitchen. Large glass walls provide direct access to the terrace and pool, allowing plenty of natural light throughout the day.

The property features two bedrooms, while a third room is designed as an office but can be adapted according to the future owner’s needs. Additionally, the house includes two bathrooms, a guest toilet, and a technical/storage room.

The central feature of the outdoor area is a large 32 m² swimming pool with a spacious sun terrace. The plot also includes parking space for at least two vehicles. The garden is fully fenced, ensuring a high level of privacy.

The house is equipped with underfloor heating throughout via a heat pump, and all rooms are fitted with air conditioning units.

The property is sold unfurnished, with the option to purchase it fully furnished and equipped at an additional cost, subject to agreement with the owner.

This villa represents an ideal opportunity for comfortable living or a relaxing holiday in a peaceful and attractive environment.

ID CODE: ID02338

Daniel Matković
Agent s licencom
Mob: +385 95 506 58 05
Tel: +385 52 417 779
E-mail: daniel@matrixrealestate.hr
https://matrixrealestate.hr/

Matrix Real Estate
Voditelj ureda
Mob: +385 52 417 779
Tel: +385 52 417 779
E-mail: info@matrixrealestate.hr
https://matrixrealestate.hr/
Características
Tipologia
Vivenda familiar
Contrato
Venda
Elevador
Não
Superfície
120 m²
Quartos
4
Quartos
3
Casas de banho
2
Varanda
Não
Terraço
Sim
Estacionamento, lugares de estacionamento
2 em estacionamento compartilhado
Ar condicionado
Ar condicionado, frio/quente
Informações de preço
Preço
€ 721.000
Preço por m²
6.008 €/m²
Eficiência energética
  • Ano de construção

    2025
  • Ar condicionado

    Ar condicionado, frio/quente
  • Certificação energética

    Não classificável
Planta
Descubra cada canto da propriedade
+11
Opções adicionais

Contactar o anunciante

Ou