map icon

Apartamento T3 novo, primeiro andar, Privlaka

Privlaka
€ 257.004
3
77 m²
1
1
Terraço

Nota

Anúncio atualizado em 22/01/2026
Descrição

This description has been translated automatically and may not be accurate

referência: 4965

For sale is an exceptionally high-quality, modern new building project with a sea view in a prime location - just 200 m from the sea - in Privlaka - near Zadar.
This is a multi-apartment building project consisting of a total of 6 apartments. The building has 3 floors (ground floor, first and second floor) with access to roof terraces.
The roof is divided into two roof terraces, and each apartment on the second floor has a separate roof terrace.
For heating and cooling the apartments, air conditioning units have been installed in all rooms, and underfloor heating has been installed in all bathrooms.
The building is currently under construction, and completion of the works is expected by 10/2025.

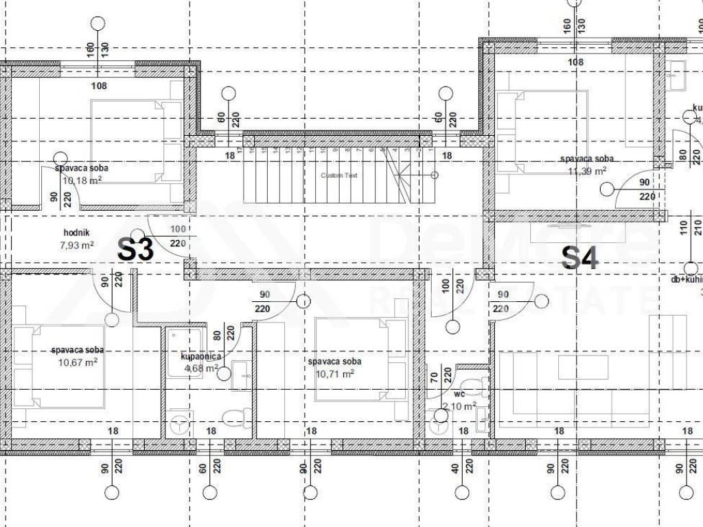
1ST FLOOR - Two-bedroom apartment
The apartment is located on the first floor and consists of:
- Entrance hall / hallway - 4.47 m2,
- Open space living room with kitchen and dining room / 35.71 m2,
- 2 bedrooms / 11.39 m2 and 11.39 m2,
- Bathroom /4.39 m2,
The interior living space of the apartment occupies 69.37 m2.
The apartment also has a covered terrace (6.85 m2), as well as 2 outdoor parking spaces (2x 12.50 m2).
The total calculated usable area of ​​the apartment is approx. 77.88 m2.

LOCATION:
The facility is located in Privlaka in a quiet location 200 m from the sea and beach - ideal for a pleasant and peaceful life or vacation.
Privlaka is a small fishing and tourist town located on a spacious sandy peninsula near Zadar (21 km) and the royal town of Nin (8 km). The island of Vir is 7 km away, and Zadar airport is 33 km away. The clean and clear sea and shallow sandy bays make this location ideal for life and family tourism.
Se quiser saber mais, pode falar com Daniel Mulahmetović.
Características
Tipologia
Apartamento
Contrato
Venda
Andar
1
Andares do Edifício
2
Superfície
77 m²
Quartos
3
Quartos
2
Casas de banho
1
Terraço
Sim
Estacionamento, lugares de estacionamento
1 em estacionamento compartilhado
Aquecimento
Individualizado, de ar, fonte de alimentação elétrica
Ar condicionado
Ar condicionado, frio/quente
Outras características
  • Janelas em vidro / PVC
Detalhe da superfície

Habitação

Andar
1
Superfície
77,9 m²
Coeficiente
100%
Tipo de superfície
Principal
Sup comercial
77,9 m²
Informações de preço
Preço
€ 257.004
Preço por m²
3.338 €/m²
Detalhes de custos
Despesas de condomínio
Sem taxas de condomínio
Eficiência energética
  • Ano de construção

    2025
  • Estado

    Novo / Em construção
  • Aquecimento

    Individualizado, de ar, fonte de alimentação elétrica
  • Ar condicionado

    Ar condicionado, frio/quente
Descubra cada canto da propriedade
+10
Opções adicionais

Contactar o anunciante

Ou