Apartamento T3 novo, segundo andar, Sveti Filip i Jakov

€ 359.784
3
107 m²
1
2
Terraço

Nota

Anúncio atualizado em 05/05/2026
Descrição

This description has been translated automatically and may not be accurate

referência: 4923

A modern apartment for sale in a NEWLY BUILT / building with a total of 6 residential units, in a prime location near the sea in Sv. Petar na moru. The building consists of a ground floor, first and second floors, and has a sea view, and the distance to the beach is only 150 m!!
The property offers an incredible view of the island of Galešnjak, also known as the "Island of Love", located in the Zadar archipelago, and the crystal clear sea. Its romantic heart shape and untouched nature attract adventurers and lovers of wild landscapes, offering an unforgettable experience.
The building is currently under construction, and completion is planned for 08/2026.
 
BUILDING CHARACTERISTICS:
- Reinforced - concrete construction,
- Facade / thermal insulation 10 cm,
- Knauf partitions / double cladding,
- PVC joinery / triple glazing - lift-sliding walls,
- Roller shutters with built-in electric lifts and mosquito nets,
- Floor el. heating installed in the bathroom and living room - WIFI control option
- Cooling / Heating via Multi-split air conditioner - WIFI control option - in the living room and bedrooms
 
 
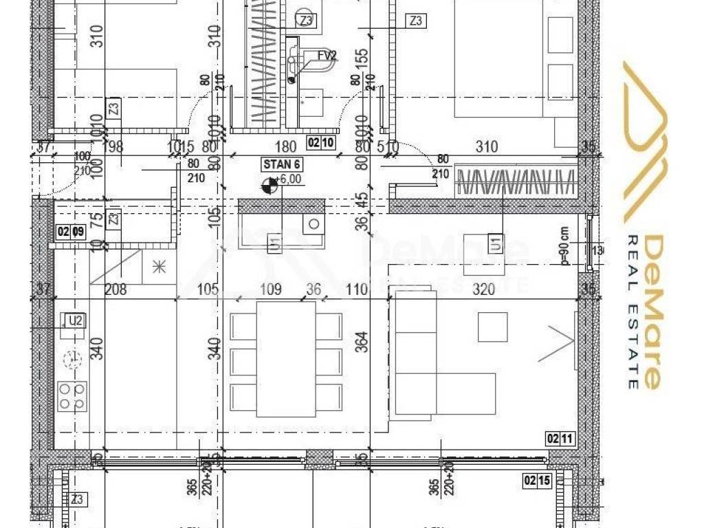
PENTHOUSE S6 apartment on the 2ND FLOOR with two bedrooms
The apartment is located on the second floor and consists of:
≈ hallway / 3.70 m2,
≈ 2 bedrooms / 13.33 m2 and 11.93 m2,
≈ bathroom / 5.08 m2,
≈ entrance hall, / 3.95 m2,
≈ living room with kitchen and dining room / 34.21 m2,
≈ covered terrace / 18.70 m2.
The interior living space occupies a total of 72.20 m2.
An internal staircase leads to a spacious roof terrace / 94.68 m2, which offers a panoramic view of the sea and islands.
The apartment also has one outdoor parking space / 12.50 m2 in the building's yard.
The total calculated useful value of the area of ​​the apartment with its belongings is 107.72 m2.
 
There is a possibility of choosing ceramics and parquet from the three offered variants, according to the agreement with the investor and depending on the construction phases.
Payment of the first part is 10% of the property price (down payment), and for the remaining amount there is a possibility of financing with a housing loan.
The buyer pays an agency commission in the amount of 1,5 % + VAT.
The seller is a legal entity in the VAT system, so the buyer DOES NOT PAY real estate transfer tax.
For all additional questions and information, please feel free to call us!
De Mare d.o.o.
Tel: +385 23 300 400
Mail: info@demare.hr
 
LOCATION:
Sv. PETAR NA MORU is located about 15 km southeast of the city of Zadar and only 10 km northwest of the old town of Biograd na moru. The distance to Zemunik airport is 9 km.
This small town offers everything you need for everyday life and for an ideal vacation. Numerous restaurants, cafes and shops will make your stay in this place even more relaxing. Sv. Petar is a place known for its beautiful pebble beaches, and is close to the town of Biograd na moru, which offers numerous additional tourist facilities.
Se quiser saber mais, pode falar com Marija Strenja.
Características
Tipologia
Apartamento
Contrato
Venda
Andar
2
Andares do Edifício
2
Superfície
107 m²
Quartos
3
Quartos
2
Casas de banho
1
Terraço
Sim
Estacionamento, lugares de estacionamento
1 em estacionamento compartilhado
Aquecimento
Individualizado, de ar, fonte de alimentação elétrica
Ar condicionado
Ar condicionado, frio/quente
Outras características
  • Janelas em vidro / PVC
Detalhe da superfície

Habitação

Andar
2
Superfície
107,7 m²
Coeficiente
100%
Tipo de superfície
Principal
Sup comercial
107,7 m²
Informações de preço
Preço
€ 359.784
Preço por m²
3.362 €/m²
Detalhes de custos
Despesas de condomínio
Sem taxas de condomínio
Eficiência energética
  • Ano de construção

    2025
  • Estado

    Novo / Em construção
  • Aquecimento

    Individualizado, de ar, fonte de alimentação elétrica
  • Ar condicionado

    Ar condicionado, frio/quente
Descubra cada canto da propriedade
+17
Opções adicionais

Contactar o anunciante

Ou