Apartamento T4 novo, Diklo - Puntamika, Zadar

€ 513.600
4
125 m²
2
r/c
Sim
Terraço

Nota

Anúncio atualizado em 22/04/2026
Descrição

This description has been translated automatically and may not be accurate

referência: 4413

For sale is a new, modern project, quality new buildings with a sea view in an excellent location in Zadar, in the wider area of Dikla, only 450 m from the sea and well-kept beaches.
It is a multi-apartment building project, in the initial phase of construction, consisting of 6 luxury three-room apartments with an underground garage.
The building has 4 floors: basement, ground floor, first and second floor, and at the top of the building there are two roof terraces that belong to the penthouse apartments on the 2nd floor.
The building will have a built-in elevator through all floors, high-quality ALU carpentry with large glass walls, heating of the apartments will be carried out using a heat pump for underfloor heating, and air conditioning and cooling using a multi-split air conditioning system, and each room will have its own unit.
Each apartment has 2 parking spaces (outdoor or indoor), and some of the apartments also have a storage room in the basement.
The planned deadline for the completion of construction works is the summer of 2025.
Payment of the first part of the amount of 10% of the price of the property (down payment), and for the rest of the amount, the possibility of financing with a housing loan.

BUILDING EQUIPMENT:
- underground garage parking spaces for tenants
- storage in the basement
- noiseless elevator through all floors
- closed staircase covered with ceramic tiles
- anti-burglary and fire-resistant entrance doors with comprehensive frames
- comfortable bedrooms
- large glass walls
- large covered terraces / landscaped gardens

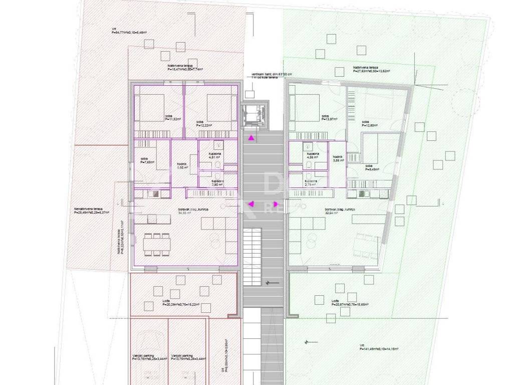
GROUND FLOOR - Apartment with garden
The apartment is located on the ground floor of the building, and consists of an entrance/hallway, living room with kitchen and dining room, 3 bedrooms and 2 bathrooms.
The interior space of the apartment occupies an area of 79.53 m2.
From the living room there is access to the outdoor covered terraces and a beautiful garden that surrounds the apartment on two sides, and there are also 2 parking spaces (13.75 m2 +13.75 m2) in the yard of the building.
The total calculated useful value of the area of the apartment with accessories is 125.27 m2.

EQUIPMENT OF THE APARTMENT
- entrance area, bathrooms and kitchen covered with ceramic tiles
- floor coverings made of high-quality parquet and tiles
- three-layer ALU carpentry with built-in mosquito nets and electric blinds
- terraces covered with ceramic tiles, decorative stone on the walls & glass fences
- underfloor heating
- air conditioning devices

For a tour of the location / real estate and all other information, feel free to contact us.

LOCATION:
The location of the facility is excellent due to its proximity to the sea and the beach approx. 450 m, the distance to the city center is approx. 3 km, and from the airport Zemunik is approx. 16 km.
Diklo is famous as an elite part of the city of Zadar, and it is located along the coast with plenty of holiday accommodation, restaurants, bars and shops. A long local promenade with a landscaped beach leads to the local marina, and from the pebble shore there is a wonderful view of the islands of the Zadar archipelago.
Se quiser saber mais, pode falar com Marija Strenja.
Características
Tipologia
Apartamento
Contrato
Venda
Andar
Rés-do-chão
Andares do Edifício
2
Elevador
Sim
Superfície
125 m²
Quartos
4
Quartos
3
Casas de banho
2
Terraço
Sim
Estacionamento, lugares de estacionamento
1 em estacionamento compartilhado
Aquecimento
Individualizado, de ar, fonte de alimentação elétrica
Ar condicionado
Ar condicionado, frio/quente
Outras características
  • Janelas em vidro / metal
  • Porta blindada
Detalhe da superfície

Habitação

Andar
Rés-do-chão
Superfície
125,3 m²
Coeficiente
100%
Tipo de superfície
Principal
Sup comercial
125,3 m²
Informações de preço
Preço
€ 513.600
Preço por m²
4.109 €/m²
Detalhes de custos
Despesas de condomínio
Sem taxas de condomínio
Eficiência energética
  • Ano de construção

    2025
  • Estado

    Novo / Em construção
  • Aquecimento

    Individualizado, de ar, fonte de alimentação elétrica
  • Ar condicionado

    Ar condicionado, frio/quente
Descubra cada canto da propriedade
+17
Opções adicionais

Contactar o anunciante

Ou