Apartamento T3 novo, primeiro andar, Privlaka

€ 360.000
3
78 m²
2
1
Terraço

Nota

Anúncio atualizado em 22/01/2026
Descrição

This description has been translated automatically and may not be accurate

referência: 4291

For sale is an extremely high-quality, modern new construction project with a sea view in an excellent location - only 50 m from the sea - in Privlaka - near Zadar.
It is a project of a multi-apartment building consisting of a total of 6 apartments. The building has 3 floors (ground floor, first and second floor) with access to roof terraces.
The roof is divided into two roof terraces, and each apartment located on the second floor has a separate roof terrace.
For heating and cooling the apartments, air conditioning devices were installed in all rooms, and floor heating was also implemented in all rooms.
The building has a thermal facade installed, high-quality PVC joinery with electric shutter lifters, the entrance door is burglar-proof / fire-resistant, and all the equipmentas well as construstion is very good quality.
 
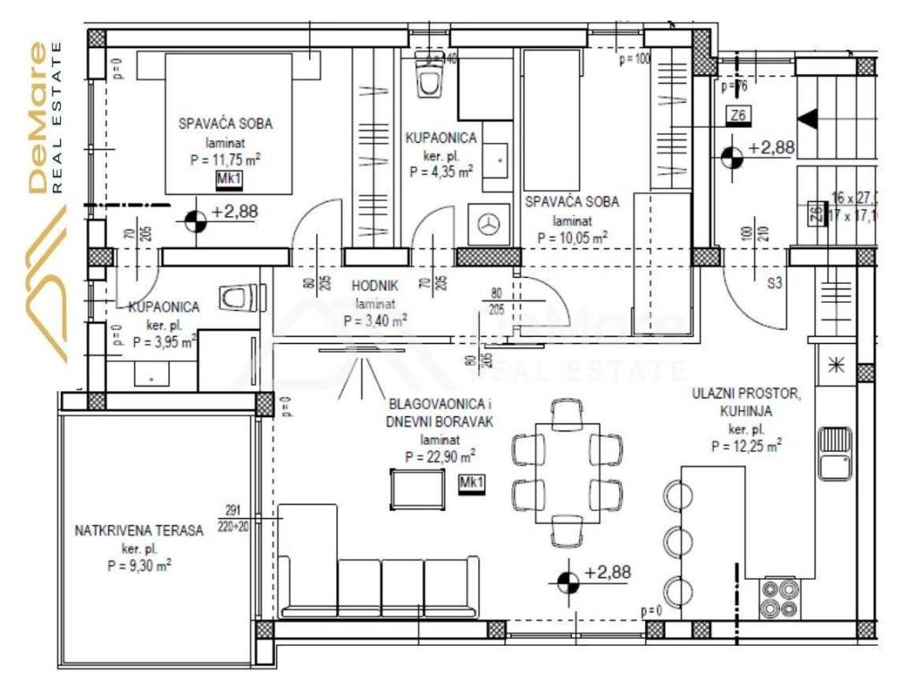
Apartment on the 1.st floor
The apartment is located on the 1.st floor of the building, and consists of:
- entrance hall / 12.25 m2,
- open space living room with kitchen and dining room / 22.90 m2,
- hallway / 3.40 m2,
- 2 bedrooms / 11.75 m2 and 10.05 m2, and
- 2 bathrooms / 4.35 m2 and 3.95 m2.
The interior living space of the apartment occupies 68.65 m2.
The apartment also has a covered terrace of 9.30 m2, as well as 2 outdoor parking spaces (2 x 12.50 m2).
The total calculated usable area of the apartment is approx. 78.30 m2.
Considering the excellent location, this apartment has a beautiful view of the sea and the sandy beach!
 
The building is finished and the apartment is immediately ready for use and occupancy!
 
LOCATION:
The property is located in Privlaka in a quiet location 50 m away from the sea and the beach - ideal for a pleasant and peaceful life or vacation.
Privlaka is a small fishing and tourist town located on a spacious sandy peninsula near Zadar (21 km) and the royal town of Nin (8 km). The distance to the island of Vir is 7 km, and to Zadar airport is 33 km. Clean and clear sea and shallow sandy coves make this location ideal for life and family tourism.
Se quiser saber mais, pode falar com Daniel Mulahmetović.
Características
Tipologia
Apartamento
Contrato
Venda
Andar
1
Andares do Edifício
2
Superfície
78 m²
Quartos
3
Quartos
2
Casas de banho
2
Terraço
Sim
Estacionamento, lugares de estacionamento
1 em estacionamento compartilhado
Aquecimento
Individualizado, de ar, fonte de alimentação elétrica
Ar condicionado
Ar condicionado, frio/quente
Vista
Mar
Outras características
  • Janelas em vidro / PVC
Detalhe da superfície

Habitação

Andar
1
Superfície
78,3 m²
Coeficiente
100%
Tipo de superfície
Principal
Sup comercial
78,3 m²
Informações de preço
Preço
€ 360.000
Preço por m²
4.615 €/m²
Detalhes de custos
Despesas de condomínio
Sem taxas de condomínio
Eficiência energética
  • Ano de construção

    2025
  • Estado

    Novo / Em construção
  • Aquecimento

    Individualizado, de ar, fonte de alimentação elétrica
  • Ar condicionado

    Ar condicionado, frio/quente
Descubra cada canto da propriedade
+15
Opções adicionais

Contactar o anunciante

Ou