Apartamento T3 Vatroslava Lisinskog, Dugo Selo

€ 206.000
3
85 m²
Sim

Nota

Anúncio atualizado em 27/10/2025
Descrição

referência: 198

Novogradnja, Stan PPP1, Dugo Selo, Vatroslava Lisinskog 85.79 m2
LOKACIJA I SADRŽAJ:
Manja višestambena zgrada je visokokvalitetna novogradnja koja se nalazi u naselju Dugo Selo, Vatroslava Lisinskog. Sastoji se od 9 modernih i funkcionalno izgrađenih stanova raspoređena u jednom ulazu. Zgrada ima prizemlje (spremište) i parkirna mjesta, 2 kata i 3. uvučeni kat.
Protupotresno projektirana.
Planirani početak gradnje je rujan 2024., a planirani završetak gradnje je siječanj 2026.
MIKROLOKACIJA:
Osnovna škola Ivan Benković
U krugu od 1000 metara
*Kaufland, Lidl
*Dom zdravlja Dugo Selo
*Pekare
*Caffe barovi
*Trgovački centar Stop Shop

TEHNIČKI OPIS:
* armirano-betonska konstrukcija
* zidovi između stanova s dodatnom zvučnom izolacijom
* fasada debljine 15cm, izolirana kamenom vunom
* pregradni zidovi u stanu knauf dupla ploča
* sustav podnog grijanja na dizalice topline voda-zrak, svaka soba ima svoj termostat
* okoliš zgrade potpuno uređen
* energetski certifikat A
* svako parkirno mjesto ima pripremu za punjenje električnih auta

OPREMA I FUNKCIONALNOST:
* Svaki ulaz 1 lift SCHINDLER
* Video portafon u boji
* Protuprovalna vrata
* Klizna PVC stolarija, vanjska u antracit boji, unutarnja u bijeloj boji
* Električni podizači roleta
* Podno grijanje
* Klima uređaj
* Laminirani parket u hodniku,dnevnom boravku i sobama
* Vrhunska keramika u kupaonici velikog formata
* Potpuno opremeljena kupaonica, walk-in tuš kabina, umivaonik sa slavinom, ormarić i ogledalo

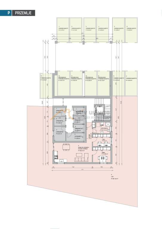
STAN/POSLOVNI PROSTOR PPP1 - 85.79 m2, 3-sobni stan nalazi se u prizemlju zgrade
Sastoji se od:

Hodnik 4.97 m2
Kupaonica 6.73 m2
Ured/Soba 8.43 m2
Ured/Soba 10.50 m2
Soba za odmor i čajna kuhinja 29.03 m2
Vrt 26.13 m2 (stvarna površina 261.26 m2)

UKUPNO 85.79 m2

Mogućnost kupovine parkirnog mjesta (Natkriveno parkirno mjesto, Vanjsko parkirno mjesto i garažno mjesto i Spremišta.
BEZ DODATNIH PROVIZIJA I NAKNADA
Sve informacije dostupne su na broju 098 9655 539
Se quiser saber mais, pode falar com Stanko Ivaniček.
Características
Tipologia
Apartamento
Contrato
Venda
Andares do Edifício
3
Elevador
Sim
Superfície
85 m²
Quartos
3
Aquecimento
Individualizado, de ar, alimentado com bomba de calor
Outras características
  • Janelas em vidro / PVC
  • Porta blindada
  • Videofone
Informações de preço
Preço
€ 206.000
Preço por m²
2.424 €/m²
Detalhes de custos
Despesas de condomínio
Sem taxas de condomínio
Eficiência energética
  • Ano de construção

    2025
  • Estado

    Novo / Em construção
  • Aquecimento

    Individualizado, de ar, alimentado com bomba de calor
  • Certificação energética

    Não classificável
Planta
Stan u novogradnji, Prodaja, Dugo Selo, Dugo Selo - Centar
Stan u novogradnji, Prodaja, Dugo Selo, Dugo Selo - Centar
Descubra cada canto da propriedade
+8
Opções adicionais

Contactar o anunciante

Ou