Apartamento T2 Okrug Gornji, Okrug

€ 240.000
2
63 m²
r/c
Terraço

Nota

Anúncio atualizado em 03/03/2026
Descrição

referência: EUROVILLA-453737

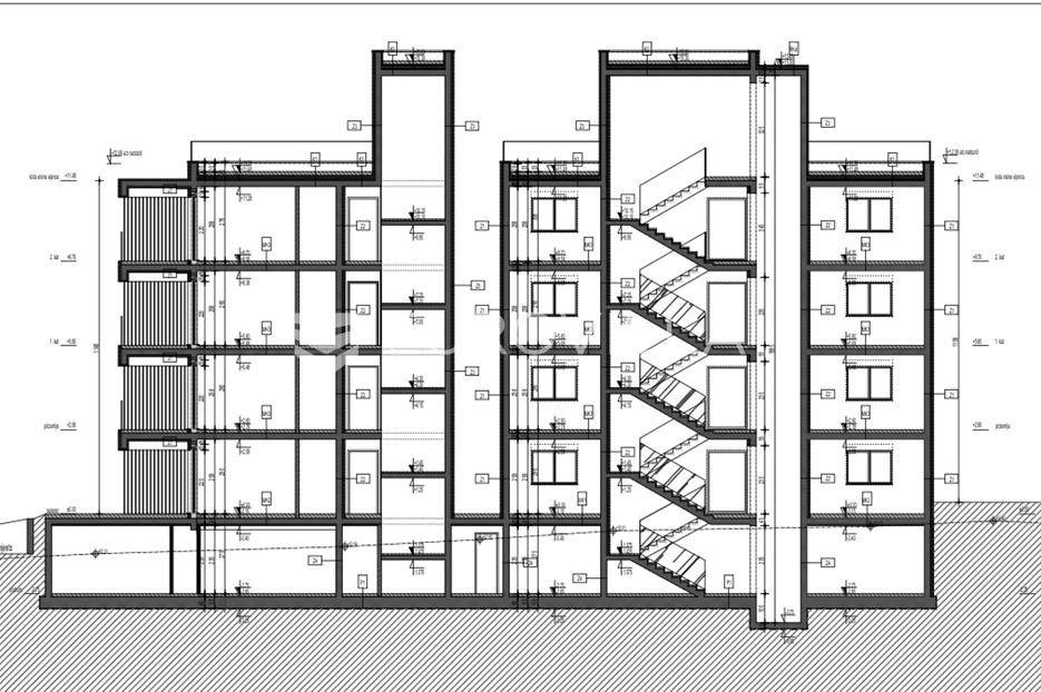
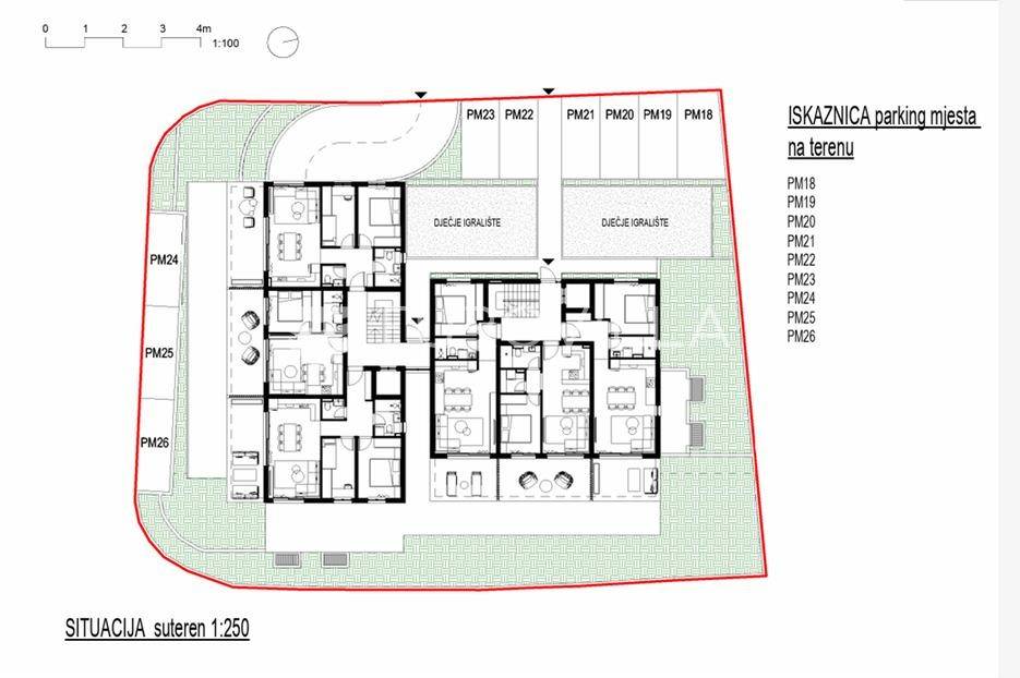
U popularnom odmaralištu srednje Dalmacije, Okrugu Gornjem na Čiovu gradi se stambeni objekta s 24 apartmana na pješačkoj udaljenosti od plaže od 370 m.Objekt se gradi na 5 etaža (jedna podzemna etaža i četiri nadzemne etaže ) uz iskoristivu krovnu terasu koja pripada stanovima na zadnjem katu. Objekt će imati lift.Apartman S3 u prizemlju (u projektu je označen kao suteren) orijentacije jug se sastoji od ulaznog prostora od 8 m2, dnevnog prostora površine 21 m2 (kuhinja, blagovaonica i dnevni boravak), dvije spavaće sobe površina 10 m2 odnosno 8 m2, kupaonice površine 4 m2, toaleta površine 2 m2 i natkrivene terase površine od 16 m2.Svi apartmani će biti opremljeni podnim grijanjem i klima uređajima u dnevnom prostoru i jednoj spavaćoj sobi a podne obloge će biti od keramičkih pločica prve klase. Prozori će biti od PVC-a s komaricama i roletama na struju a vanjska fasadna izolacija će biti od stiropora debljine 10 cm.U fazi izgradnje još je moguće dogovarati uređenje interijera.Za svaki apartman u prizemlju je predviđeno jedno vanjsko parking mjesto.Očekivani početak radova je ljeto 2026 godine a useljenje početak 2028 godine. Trenutačno se primaju rezervacije a nakon početka radova potpisuje se predugovor.Način plaćanja: rezervacija min 5.000 eura / 30 % prilikom potpisa predugovora / 30 % nakon završetka konstrukcijskih radova / 15 % nakon završetka fasade / 15 % nakon završetka unutrašnjosti / 10 % nakon ishođenja uporabne dozvole.Kako je otok Čiovo svojevrstan produžetak grada Trogira, nudi pregršt mogućnosti za odmor, rekreaciju i kupanje te razgledavanje mnogobrojnih povijesnih spomenika.Mediteranska vegetacija, arhipelag s malim slikovitim otočićima, blaga klima i predivne plaže u skrovitim zaljevima čine ovo mjesto poželjnom destinacijom za stanovanje I odmor.Dodatne informacije - udaljenosti od važnijih lokacija:Plaža: 370 m / Trogir: 4,5 km / zračna luka: 8 km / Split: 30 kmKupovina: 150 m / restoran: 150 m / ljekarna: 200 m / banka: 300 mZa sva dodatna pitanja stojim na raspolaganju.... Više na eurovilla.hr, ID: 453737
Se quiser saber mais, pode falar com Domagoj Zekan.
Características
Tipologia
Apartamento
Contrato
Venda
Andar
Rés-do-chão
Superfície
63 m²
Quartos
2
Quartos
2
Terraço
Sim
Detalhe da superfície

Habitação

Andar
Rés-do-chão
Superfície
63,1 m²
Coeficiente
100%
Tipo de superfície
Principal
Sup comercial
63,1 m²
Informações de preço
Preço
€ 240.000
Preço por m²
3.810 €/m²
Eficiência energética
  • Estado

    Novo / Em construção
  • Certificação energética

    Livre
Planta
Descubra cada canto da propriedade
+12
Opções adicionais

Contactar o anunciante

Ou