Apartamento T2 Okrug Gornji, Okrug

€ 250.000
2
60 m²
2
Terraço

Nota

Anúncio atualizado em 03/03/2026
Descrição

referência: EUROVILLA-478624

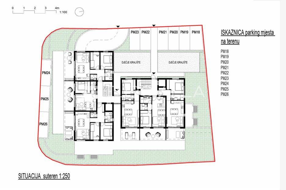
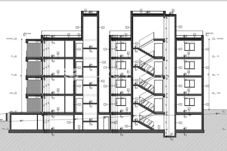
U popularnom odmaralištu srednje Dalmacije, Okrugu Gornjem na Čiovu gradi se stambeni objekta s 24 apartmana na pješačkoj udaljenosti od plaže od 370 m.Objekt se gradi na 5 etaža (jedna podzemna etaža i četiri nadzemne etaže ) uz iskoristivu krovnu terasu koja pripada stanovima na zadnjem katu. Objekt će imati lift.Apartman S13 na drugom katu (u projektu označen kao prvi kat) orijentacije jug se sastoji od ulaznog prostora površine 6 m2, dnevnog prostora površine 21 m2 (kuhinja, blagovaonica i dnevni boravak), dvije spavaće sobe površina 10 m2 odnosno 8 m2, kupaonice površine 4 m2, toaleta površine 2 m2 i natkrivene terase površine od 15 m2.Svi apartmani će biti opremljeni podnim grijanjem i klima uređajima u dnevnom prostoru i jednoj spavaćoj sobi a podne obloge će biti od keramičkih pločica prve klase. Prozori će biti od PVC-a s komaricama i roletama na struju a vanjska fasadna izolacija će biti od stiropora debljine 10 cm.U fazi izgradnje još je moguće dogovarati uređenje interijera.Apartmanu S13 pripada veliko garažno parking mjesto po cijeni od 25.000 eura.Očekivani početak radova je ljeto 2026 godine a useljenje početak 2028 godine. Trenutačno se primaju rezervacije a nakon početka radova potpisuje se predugovor.Način plaćanja: rezervacija min 5.000 eura / 30 % prilikom potpisa predugovora / 30 % nakon završetka konstrukcijskih radova / 15 % nakon završetka fasade / 15 % nakon završetka unutrašnjosti / 10 % nakon ishođenja uporabne dozvole.Kako je otok Čiovo svojevrstan produžetak grada Trogira, nudi pregršt mogućnosti za odmor, rekreaciju i kupanje te razgledavanje mnogobrojnih povijesnih spomenika.Mediteranska vegetacija, arhipelag s malim slikovitim otočićima, blaga klima i predivne plaže u skrovitim zaljevima čine ovo mjesto poželjnom destinacijom za stanovanje I odmor.Dodatne informacije - udaljenosti od važnijih lokacija:Plaža: 370 m / Trogir: 4,5 km / zračna luka: 8 km / Split: 30 kmKupovina: 150 m / restoran: 150 m / ljekarna: 200 m / banka: 300 mZa sva dodatna pitanja stojim na raspolaganju.... Više na eurovilla.hr, ID: 478624
Se quiser saber mais, pode falar com Domagoj Zekan.
Características
Tipologia
Apartamento
Contrato
Venda
Andar
2
Superfície
60 m²
Quartos
2
Quartos
2
Terraço
Sim
Detalhe da superfície

Habitação

Andar
2
Superfície
60,0 m²
Coeficiente
100%
Tipo de superfície
Principal
Sup comercial
60,0 m²
Informações de preço
Preço
€ 250.000
Preço por m²
4.167 €/m²
Eficiência energética
  • Estado

    Novo / Em construção
  • Certificação energética

    Livre
Planta
Descubra cada canto da propriedade
+12
Opções adicionais

Contactar o anunciante

Ou