Apartamento T3 novo, primeiro andar, Arbanasi do Crno, Zadar

€ 297.426
3
78 m²
2
1

Nota

Anúncio atualizado em 24/04/2026
Descrição

This description has been translated automatically and may not be accurate

referência: 5157

A new residential building project with one- and two-bedroom apartments of excellent quality is for sale in Zadar, in the Crvena kuća area.
The building will have 3 floors (GR+1ST FLOOR+2ND FLOOR), storage rooms on the ground floor and parking spaces in the building's yard. There are 8 residential units in total; there are 2 apartments with a garden on the ground floor, and 3 apartments are designed on each upper floor.
Each residential unit has one storage room and two parking spaces.
The start of construction is planned for the end of 2025, and the completion of construction works is expected by the end of 2026.
 
BUILDING EQUIPMENT:
The highest quality materials will be used in the construction of this residential building, which will be installed according to the highest construction standards:
≅ Thermal facade of the building / 10 cm polystyrene
≅ PVC joinery with triple insulated glass (LOW-e filling)
≅ Built-in mosquito nets
≅ ALU roller shutters with electric lifts on the balcony walls
≅ Video intercom
≅ Storage rooms for tenants on the ground floor
The layout of the rooms is perfectly functional and maximally utilized. All rooms are filled with natural light due to large windows and glass walls.
 
 
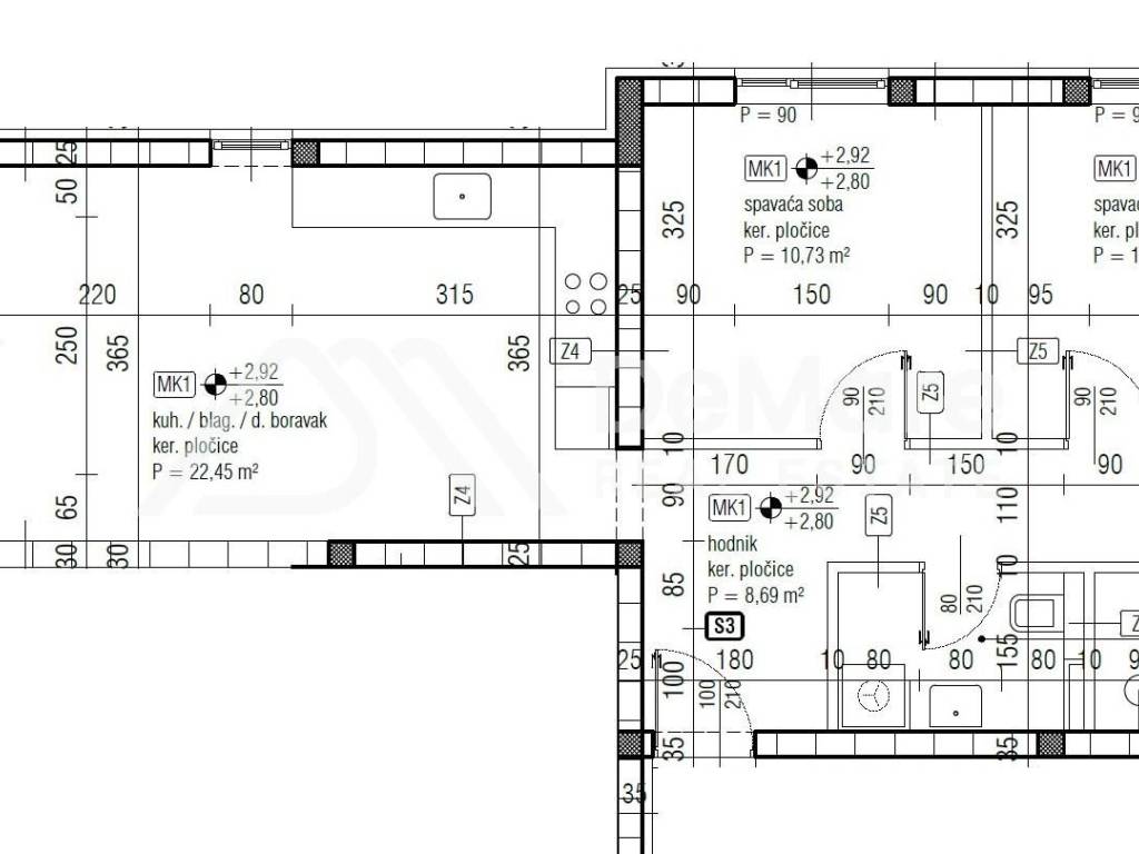
1ST FLOOR / S3: Apartment with two bedrooms and a loggia
This comfortable apartment is located on the first floor of the building, and consists of:
- Hallway (8.69 m2)
- Bedroom (10.73 m2),
- Bedroom (10.89 m2),
- Bathroom (5.19 m2),
- Toilet (3.41 m2),
- Living room with kitchen and dining room / open space (22.45 m2) with access to
- Loggia (10.00 m2).
The apartment includes a storage room (3.91 m2) on the ground floor and 2 outdoor parking spaces (2 x 13.75 m2) in the building's yard.
The interior area of ​​the apartment is 61.36 m2, and the total useful calculated value of the area of ​​the apartment with its belongings is 78.27 m2.
 
APARTMENT EQUIPMENT:
- Air conditioning (heating and cooling) - multi-split system, each room has its own unit
- Ceramic tiles and top quality sanitary ware
- In the bathroom - electric radiator
- Burglar / fire door
 
ADVANTAGE when buying this property:The buyer DOES NOT PAY real estate tax, because the investor is a reliable legal entity with many years of experience in construction, and is in the VAT system.
For a tour of the location, presentation of the project and selected properties,
as well as for all other information, feel free to contact us!!
De Mare d.o.o.
Tel: +385 23 300 400
Mail: info@demare.hr
 
LOCATION:
Zadar is a European city tailored to the needs of a person with the most beautiful sunsets and a city where the sea plays the organ, and attracts many tourists throughout the year. In the summer because of the beautiful beaches it is surrounded by, and in other seasons because of its rich cultural heritage, gastronomy and numerous natural beauties it possesses. The city of Zadar is located in the very center of the Adriatic coast, is characterized by a mild Mediterranean climate, and is surrounded by 4 National Parks (Plitvice Lakes, Paklenica, Krka Waterfalls and the Kornati archipelago).
Zadar Airport is only 8 km away and is well connected to many European cities and destinations.
Zadar Ferry Port, which is 2.5 km from the property, has lines with most islands, and during the summer season is a stop for numerous tourist cruisers.
Se quiser saber mais, pode falar com Ivo Strenja.
Características
Tipologia
Apartamento
Contrato
Venda
Andar
1 andar
Andares do Edifício
2
Superfície
78 m²
Quartos
3
Quartos
2
Casas de banho
2
Estacionamento, lugares de estacionamento
2 em estacionamento compartilhado
Ar condicionado
Ar condicionado, frio/quente
Distância do mar
2 m
Outras características
  • Janelas em vidro / PVC
  • Porta blindada
Informações de preço
Preço
€ 297.426
Preço por m²
3.813 €/m²
Detalhes de custos
Despesas de condomínio
Sem taxas de condomínio
Eficiência energética
  • Ano de construção

    2026
  • Estado

    Novo / Em construção
  • Ar condicionado

    Ar condicionado, frio/quente
  • Certificação energética

    Não classificável
Descubra cada canto da propriedade
+19
Opções adicionais

Contactar o anunciante

Ou