Vivenda familiar 171 m², nova, Šibenik

€ 615.000
4
171 m²
3
Não
Terraço

Nota

Anúncio atualizado em 05/12/2025
Descrição

This description has been translated automatically and may not be accurate

referência: K2199

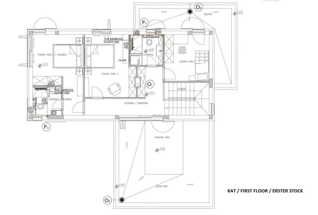
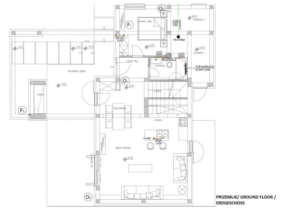
Zaton - a luxury urban villa with a swimming pool is for sale in a quiet location. The house has a gross area of 171.20 m² (net living area 141.6 m²) and consists of two floors: ground floor + first floor. On the ground floor there is an entrance, hallway, bedroom, bathroom, open space kitchen with dining area, and living room with access to a partially covered terrace and garden. The ground floor also includes a technical room and additional storage/pantry. An internal staircase leads to the first floor of the house, where there is a corridor, two bedrooms, a bathroom, a master bedroom with its own bathroom, and a terrace.

The house is built with high-quality materials and will be equipped according to the latest construction standards. Equipment highlights include: SCHUCO ALU exterior joinery, large glass walls, heating and cooling system with underfloor heating and a heat pump, a heat pump for the pool, a private photovoltaic power plant, electric vehicle charging station...

The house includes a landscaped yard of approximately 300 m², featuring a pool with a machine room, garden, and three parking spaces.

The house is in the final stages of construction, with a planned completion date by the end of 2025.

The house is located in a quiet area and offers a high level of privacy to its future owners. It is part of a project consisting of 4 modern urban villas. Great attention is paid in this project to both the aesthetics of the villas themselves and their visual harmony with the surroundings. It is situated on a gentle elevation, and all amenities necessary for comfortable living and/or stay are nearby.

Zaton is a traditional Dalmatian village located in a wide, peaceful bay just about ten kilometers from Šibenik. Surrounded by untouched nature, olive groves, pine forests, and crystal-clear sea, Zaton provides a perfect blend of authentic Mediterranean ambiance and the comfort of modern living. Zaton exudes an authentic Dalmatian spirit – life here still moves at a slow, relaxed pace, far from crowds and stress. The village has all essential amenities: a shop, school, clinic, cafés, taverns with homemade cuisine, and organized beaches ideal for families with children. Nature lovers and active holidaymakers can enjoy cycling and hiking trails, kayaking, or fishing, while Krka National Park, the historic city of Šibenik, and the popular tourist resort Vodice are just a few minutes’ drive away. Because of all this, more and more people choose Zaton not only as an ideal holiday destination but also as a permanent place of residence.





Agency commision is 3% with VAT
Características
Tipologia
Vivenda familiar | Classe propriedade média
Contrato
Venda
Elevador
Não
Superfície
171 m²
Quartos
4
Quartos
4
Casas de banho
3
Varanda
Não
Terraço
Sim
Aquecimento
Individualizado, piso radiante
Ar condicionado
Ar condicionado
Outras características
  • Jardim privado e comum
  • Porta blindada
  • Piscina
Informações de preço
Preço
€ 615.000
Preço por m²
3.596 €/m²
Eficiência energética

Consumo de energia

A+

Planta
Descubra cada canto da propriedade
+21
Opções adicionais

Contactar o anunciante

Ou