Apartamento T2 novo, primeiro andar, Povljana

€ 222.200
2
60 m²
1
1
Não
Varanda

Nota

Anúncio atualizado em 03/11/2025
Descrição

referência: iro-699011

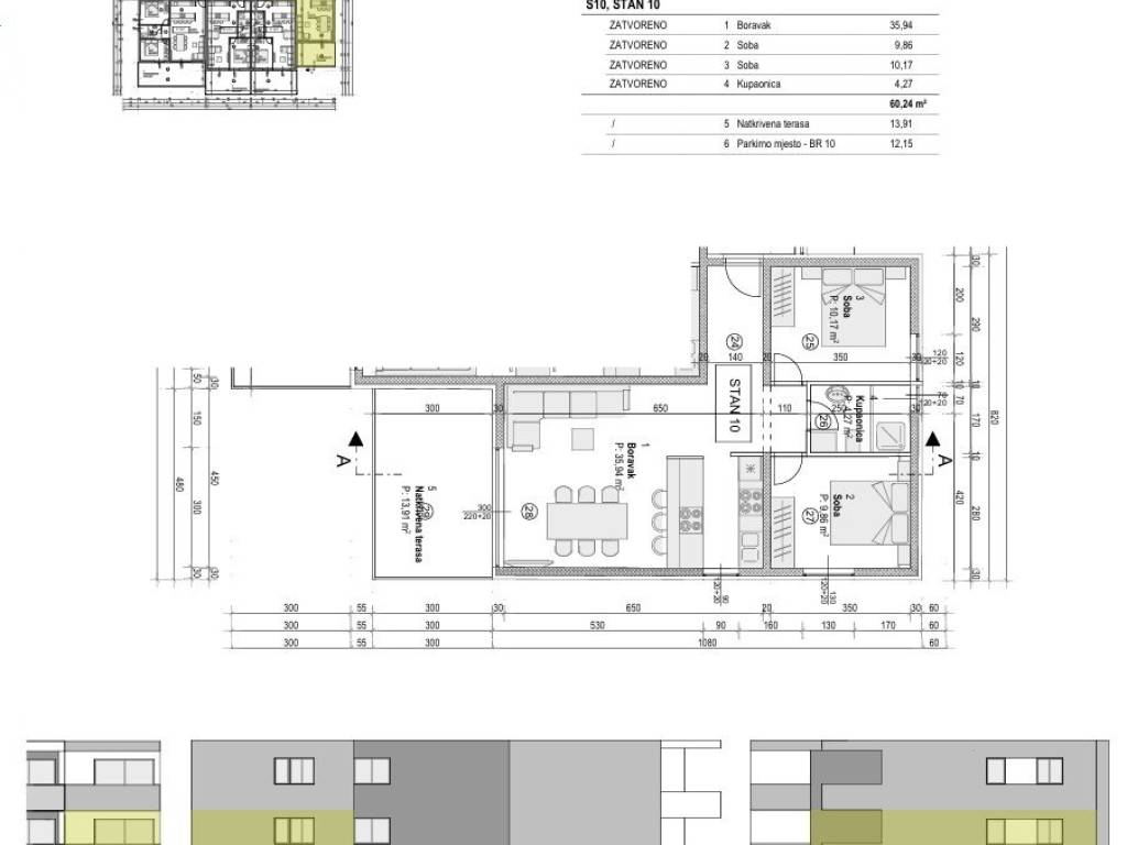
Pag - Povljana, prodaje se dvosobni apartman od 60,24 m2 na prvom katu stambenog objekta sa ukupno petnaest apartmana u izgradnji, planirano useljenje ljeto/2026.

Sastoji se od: dvije spavaće sobe, dnevnog boravka + kuhinja + blagovaona, kupaonice i terase.

IZ APARTMANA SE PRUŽA POGLED NA MORE!!!

Nalazi se na odličnoj lokaciji 300 m udaljen od mora i plaže Mali Dubrovnik, 600 m od plaže Dubrovnik, blizina trgovine, kafića, restorana te svih ostalih sadržaja potrebnih za ugodan odmor!!

Posjeduje parkirno mjesto.

Dokumentacija uredna.

Gledati tlocrt stan oznake S10.
Características
Tipologia
Apartamento | Classe propriedade média
Contrato
Venda
Andar
1 andar
Elevador
Não
Superfície
60 m²
Quartos
2
Quartos
2
Casas de banho
1
Varanda
Sim
Terraço
Não
Aquecimento
Individualizado, de ar
Ar condicionado
Ar condicionado
Informações de preço
Preço
€ 222.200
Preço por m²
3.703 €/m²
Eficiência energética
  • Ano de construção

    2025
  • Estado

    Novo / Em construção
  • Aquecimento

    Individualizado, de ar
  • Ar condicionado

    Ar condicionado
Descubra cada canto da propriedade
+4
Opções adicionais

Contactar o anunciante

Ou