1/10


Escritório - Estúdio para Venda
Varaždin€ 295.000
Anúncio atualizado em 23/12/2025
Descrição
referência: 2151-1
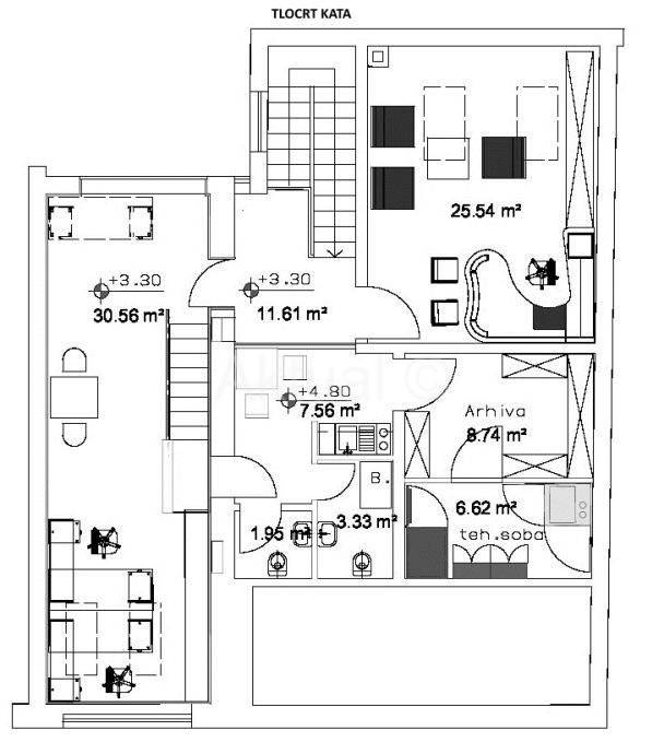
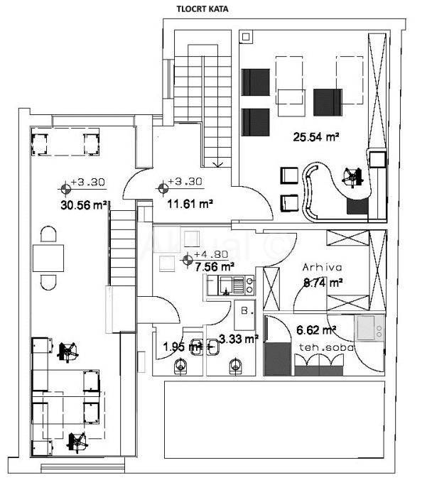
Na prodaju dvoetažni ulični poslovni prostor površine 190 m2 koji se nalazi na ekskluzivnoj lokaciji u strogom centru grada Varaždina.
Prostor je potpuno uređen za obavljanje bankarske ili slične djelatnosti.
*KUPAC NE PLAĆA AGENCIJI PROVIZIJU.
Za više informacija i termin razgledavanja kontaktirajte agenciju.
Aktual nekretnine
Hrgovići 38, Zagreb
01 889 7777
098 677 097
099 444 1955
Características
- Contrato
- Venda
- Tipologia
- Escritório - Estúdio
- Superfície
- 190 m²
- Quartos
- 5+ quartos
Informações de preço
- Preço
- € 295.000
- Preço por m²
- 1.553 €/m²
Eficiência energética
Certificação energética
Não classificável
Descubra cada canto da propriedade
Opções adicionais