Apartamento novo, segundo andar, Luka, Poreč

€ 599.000
5+
151 m²
3
2
Terraço

Nota

Anúncio atualizado em 13/03/2026
Descrição

This description has been translated automatically and may not be accurate

referência: 2247-1

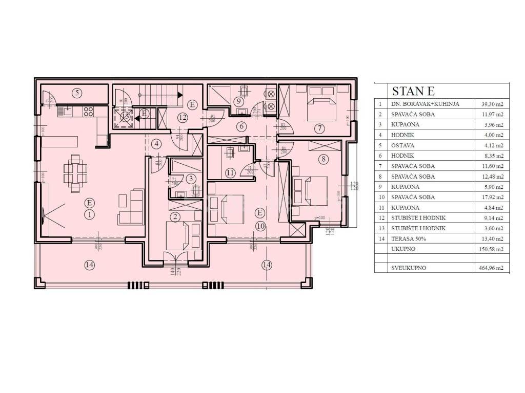
In an ATTRACTIVE LOCATION, only 600 m from the beach and 1.000 m from the city center, there is an penthouse under construction for sale, total area 150.58 m. Located on the second and last floor of an intimate residential building with only five residential units, the penthouse offers intimacy and comfort of life with a modern design and functional layout.

The apartment consists of:
entrance hall,
bright and open living room connected to the kitchen and dining room,
large glass walls leading to the spacious covered terrace (26,80 m),
four comfortable bedrooms,
three modern bathrooms and storage room.

The apartment includes two parking spaces in front of the building.

Additional benefits include underfloor heating in all rooms, and inverter air conditioners that provide a comfortable temperature throughout the year.

Note: the buyer does not pay real estate sales tax (3% of the purchase price).

This offer is a rare opportunity, a modern apartment in a great location in Poreč - a perfect combination of luxury, functionality and proximity to the sea!
Se quiser saber mais, pode falar com Patricija Simonetti.
Características
Tipologia
Apartamento
Contrato
Venda
Andar
2 andar
Superfície
151 m²
Quartos
5+
Quartos
4
Casas de banho
3
Terraço
Sim
Aquecimento
Central
Informações de preço
Preço
€ 599.000
Preço por m²
3.967 €/m²
Eficiência energética
  • Ano de construção

    2025
  • Estado

    Novo / Em construção
  • Aquecimento

    Central
  • Certificação energética

    Não classificável
Descubra cada canto da propriedade
+4
Opções adicionais

Contactar o anunciante

Ou