map icon

Apartamento T4 rés-do-chão, Okrug

Okrug
€ 238.432
4
80 m²
1
r/c

Nota

Anúncio atualizado em 05/12/2025
Descrição

This description has been translated automatically and may not be accurate

referência: 1376-1

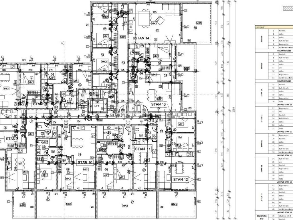
We are offering for sale a two-bedroom apartment under construction in Okrug Gornji. The apartment code is "STAN 13".
The apartment consists of a hallway, two bedrooms, a living room with kitchen and dining room, bathroom, additional toilet and a loggia. You can see the detailed square footage in the floor plan.
The building is under construction, and completion is scheduled for summer 2026.
Price of an outdoor parking space: 5000 EUR.
The construction is taking place in a quiet and safe location ideal for permanent residence, year-round or tourist rental.
For more information, contact the agent.
Características
Tipologia
Apartamento
Contrato
Venda
Andar
Rés-do-chão
Superfície
80 m²
Quartos
4
Quartos
2
Casas de banho
1
Informações de preço
Preço
€ 238.432
Preço por m²
2.980 €/m²
Eficiência energética
  • Certificação energética

    Não classificável
Descubra cada canto da propriedade
+4
Opções adicionais

Contactar o anunciante

Ou