map icon

Apartamento segundo andar, Okrug

Okrug
€ 620.000
5+
103 m²
2
2

Nota

Anúncio atualizado em 05/12/2025
Descrição

This description has been translated automatically and may not be accurate

referência: 1360-1

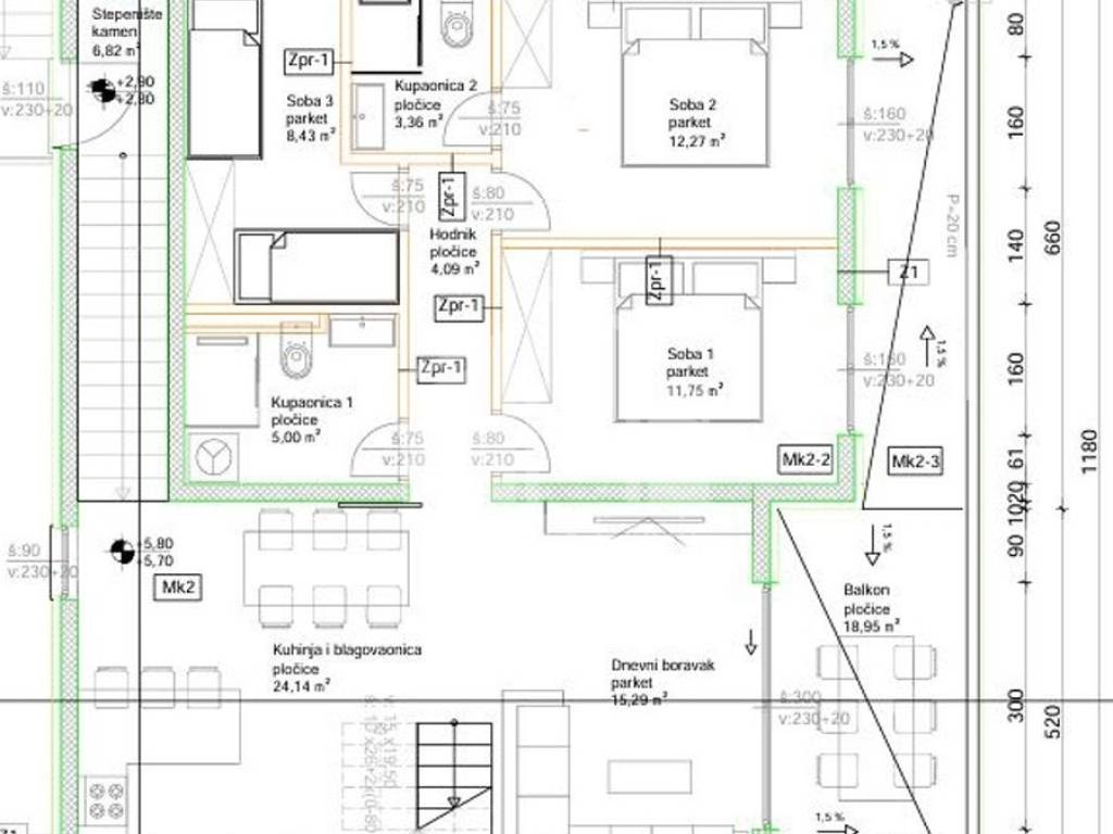
We are offering for sale a three-bedroom penthouse apartment on the second floor of a residential building under construction in Okrug Gornji. The apartment consists of a hallway, three bedrooms, two bathrooms with a toilet, a living room with a kitchen and a dining room, and a balcony. The interior area of the apartment is 84.33 m2, and the balcony area is 18.95 m2. It comes with a garage space and a walk-through roof terrace of 87.67 m2 with a hot tub. The property is being built in a quiet, safe location near the sea, and as such represents exceptional potential for tourist or year-round rental. For more information, contact the agent.
Características
Tipologia
Apartamento
Contrato
Venda
Andar
2 andar
Superfície
103 m²
Quartos
5+
Quartos
3
Casas de banho
2
Informações de preço
Preço
€ 620.000
Preço por m²
6.019 €/m²
Eficiência energética
  • Certificação energética

    Não classificável
Opções adicionais

Contactar o anunciante

Ou