map icon

Apartamento T4 novo, terceiro andar, Seget

Seget
€ 208.000
4
63 m²
1
3

Nota

Anúncio atualizado em 05/12/2025
Descrição

This description has been translated automatically and may not be accurate

referência: 1272-1

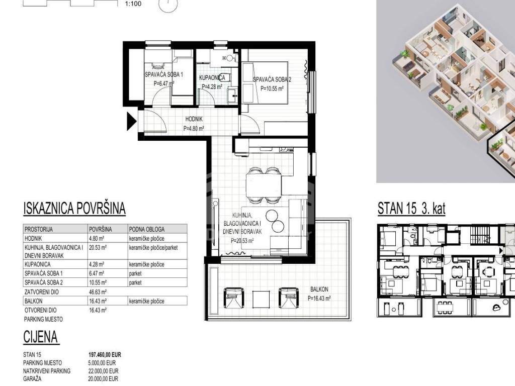
We offer for sale a two-bedroom apartment on the third floor of a residential building under construction in Seget Donji.

The apartment consists of a hallway, living room with kitchen and dining room, bathroom with toilet, two bedrooms, and a balcony.

The total internal area of the apartment is 46.63 m2, and the area of the balcony is 16.43 m2.

It does not own a parking space, but the investor offers three options; purchase of an outdoor uncovered parking space at a price of EUR 5,000, an outdoor covered parking space at a price of EUR 22,000 or a garage parking space at a price of EUR 20,000.

The sale is made on a "turnkey" basis, which includes the installation of quality ceramics and parquet, fire and burglary blind doors, room doors, sanitary ware and underfloor heating in the bathroom, air conditioning, quality PVC carpentry, electric motors on blinds on the sliding wall, etc.

The start of construction is scheduled for the spring of 2025, and completion and occupancy are scheduled 18 months from the start of construction.

The building is being built in a quiet and safe location of only approx. 200m from the sea, near all necessary facilities (school, shopping center, beach, clinic, pharmacy) for permanent residence, year-round or tourist rental.

For more information, contact an agent.
Características
Tipologia
Apartamento
Contrato
Venda
Andar
3 andar
Superfície
63 m²
Quartos
4
Quartos
2
Casas de banho
1
Informações de preço
Preço
€ 208.000
Preço por m²
3.302 €/m²
Eficiência energética
  • Estado

    Novo / Em construção
  • Certificação energética

    Não classificável
Opções adicionais

Contactar o anunciante

Ou