map icon

Vivenda familiar 128 m², nova, Vodice

Vodice
€ 475.000
3
128 m²
2

Nota

Anúncio atualizado em 28/01/2026
Descrição

This description has been translated automatically and may not be accurate

referência: 3232-1

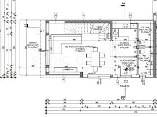
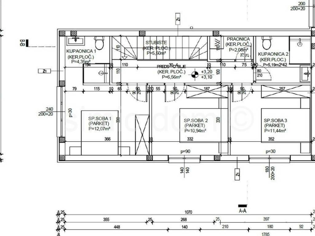
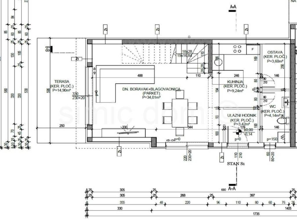
For sale is an excellent newly built house in a very attractive location just 250m from the beach and a 10-minute walk from neighbouring Vodice. It is a semi-detached, family house of modern design in a very quiet street with minimal traffic. The house has a usable area of 128 m2 and extends over two floors: ground floor and first floor, and has a 105 m2 yard with two parking spaces. The ground floor consists of a hallway, toilet, utility room, open-concept kitchen with dining room and living room that has access to the terrace and yard with swimming pool. On the first floor there are three bedrooms, two bathrooms and a storage room / laundry room. The house is built with extremely high-quality materials, equipped with security doors, ALU lift-sliding walls with electrically controlled roller shutters, mosquito nets, glass railings, electric underfloor heating in the bathrooms as well as in the kitchen and living room, each room with air conditioning and TV/SAT connection. Hot water heating is via a boiler located in the storage room, preparation for video surveillance for two external cameras. The stairs are cantilever (floating) steel structures with wooden cladding and anthracite-coloured steel rod railing. The 2.8m x 6.4m swimming pool is lined with ceramic mosaic tiles, and apart from the green part of the yard, the surroundings and parking lot will be paved with concrete pavement. Excellent location close to all amenities and quality construction make this property a really good investment.

Viewing this property is possible only with the signing of our standard agency agreement, which is the basis for further actions related to the sale of real estate, all in accordance with the Law on Data Protection and the Real Estate Brokerage Act.
Características
Tipologia
Vivenda familiar
Contrato
Venda
Superfície
128 m²
Quartos
3
Casas de banho
2
Ar condicionado
Centralizado, frio/quente
Outras características
  • Porta blindada
Informações de preço
Preço
€ 475.000
Preço por m²
3.711 €/m²
Eficiência energética
  • Estado

    Novo / Em construção
  • Ar condicionado

    Centralizado, frio/quente
  • Certificação energética

    Não classificável
Descubra cada canto da propriedade
+8
Opções adicionais

Contactar o anunciante

Ou