map icon

Apartamento T2 novo, segundo andar, Rogoznica

Rogoznica
€ 596.250
2
126 m²
2
2

Nota

Anúncio atualizado em 28/01/2026
Descrição

This description has been translated automatically and may not be accurate

referência: 2667-1

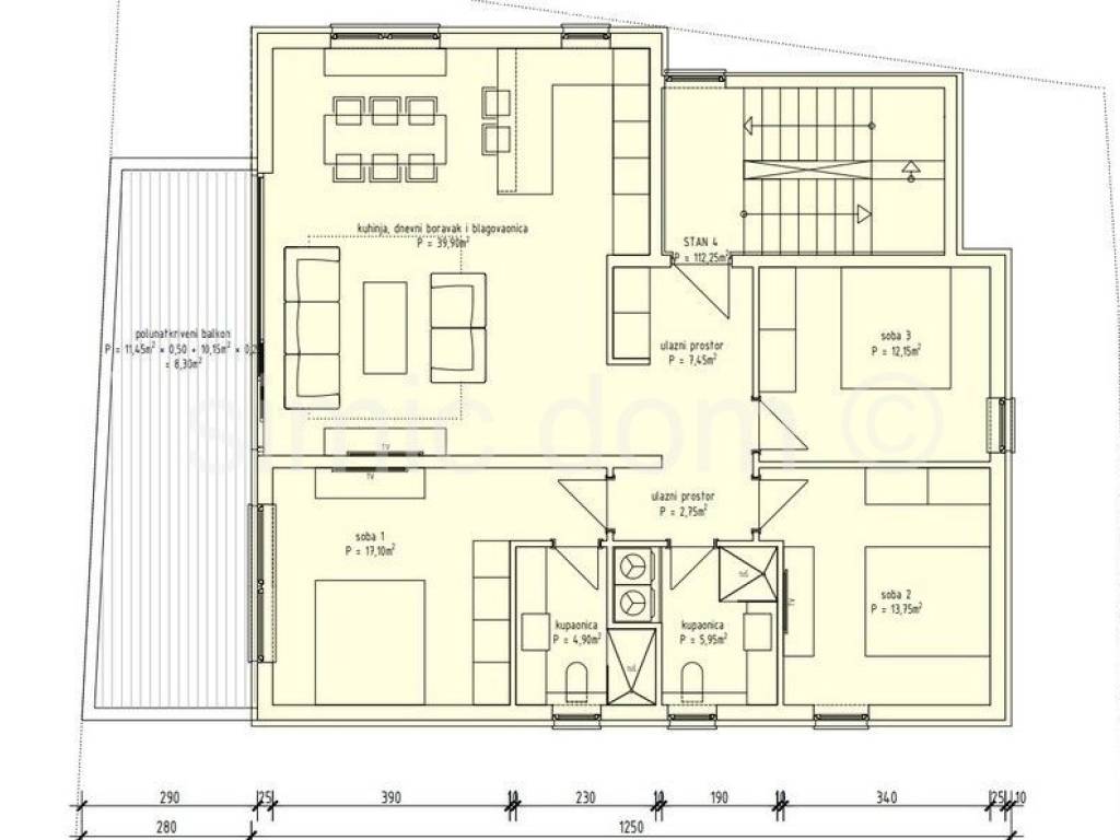
We mediate in the sale of a penthouse apartment in an excellent location and of top quality, just a few steps away from one of the most beautiful pebble beaches on our coast. It is located on the last, second floor of a smaller building with 4 residential units. Total floor area of the apartment is 125.55m2 or 112.25m2 net, and it has one outdoor parking space. It consists of an entrance hall, two bedrooms, two bathrooms, one of which is en-suite, and a spacious kitchen and living room with access to a beautiful terrace with a view of the sea. The modern and urban design of the apartments will give the owners a real feeling of luxury. High glass walls, spaciousness, lots of storage space, first-class ceramics, underfloor heating in the bathrooms, high-quality air conditioning and high-quality carpentry are just some of the features that this apartment will have. The planned completion of the project is the end of 2023.

Viewing this property is possible only with the signing of our standard agency agreement, which is the basis for further actions related to the sale of real estate, all in accordance with the Law on Data Protection and the Real Estate Brokerage Act.
Características
Tipologia
Apartamento
Contrato
Venda
Andar
2 andar
Superfície
126 m²
Quartos
2
Casas de banho
2
Ar condicionado
Centralizado, frio/quente
Informações de preço
Preço
€ 596.250
Preço por m²
4.732 €/m²
Eficiência energética
  • Estado

    Novo / Em construção
  • Ar condicionado

    Centralizado, frio/quente
  • Certificação energética

    Não classificável
Descubra cada canto da propriedade
+9
Opções adicionais

Contactar o anunciante

Ou