map icon

Vila familiar 421 m², nova, Zadar

Zadar
€ 2.500.000
5+
421 m²
3+

Nota

Anúncio atualizado em 28/04/2026
Descrição

referência: 1890-1

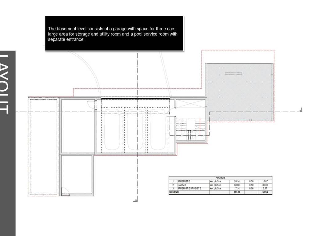
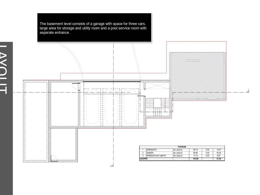
Ova luksuzna vila prostire se na tri etaže, smještena je u mirnom predjelu Zadra 500m od mora.Na 1.katu kuće nalaze se četri spavaće sobe sa kupaonicama,ured,kotlovnica i dvije terase.Prizemlje kuće sastoji se od prostranog dnevnog boravka,blagavaonice, kuhinje,wc, sauna,wellnes,praonica,terasa i bazen.U suterenu kuće nalazi se garaža za tri automobila,spremište i strojarnica za bazen.Ova villa opremljena je HVAC sistemom koji je povezan sa vrhunskom toplinskom Altherma pumpom u kombinaciji sa solarnim panelima, za kompletno grijanje i hlađenje cijele kuće, punjačima za električni automobil, pročišćavaćom vode......
Se quiser saber mais, pode falar com Linda Jokić.
Características
Tipologia
Vila familiar
Contrato
Venda
Andar
1
Superfície
421 m² | comercial 1.350 m²
Quartos
5+
Quartos
4
Casas de banho
3+
Detalhe da superfície

Habitação

Andar
1
Superfície
421,0 m²
Coeficiente
100%
Tipo de superfície
Principal
Sup comercial
421,0 m²

Terreno

Andar
Rés-do-chão
Superfície
929,0 m²
Coeficiente
100%
Tipo de superfície
Acessórios
Sup comercial
929,0 m²
Informações de preço
Preço
€ 2.500.000
Preço por m²
1.852 €/m²
Eficiência energética
  • Ano de construção

    2026
  • Estado

    Novo / Em construção
  • Certificação energética

    Não classificável
Descubra cada canto da propriedade
+7
Opções adicionais

Contactar o anunciante

Ou