map icon

Apartamento T3 novo, primeiro andar, Špansko - Stenjevec, Zagreb

ZagrebŠpansko - Stenjevec
€ 226.984
3
53 m²
1
1

Nota

Anúncio atualizado em 05/12/2025
Descrição

referência: 3564-1

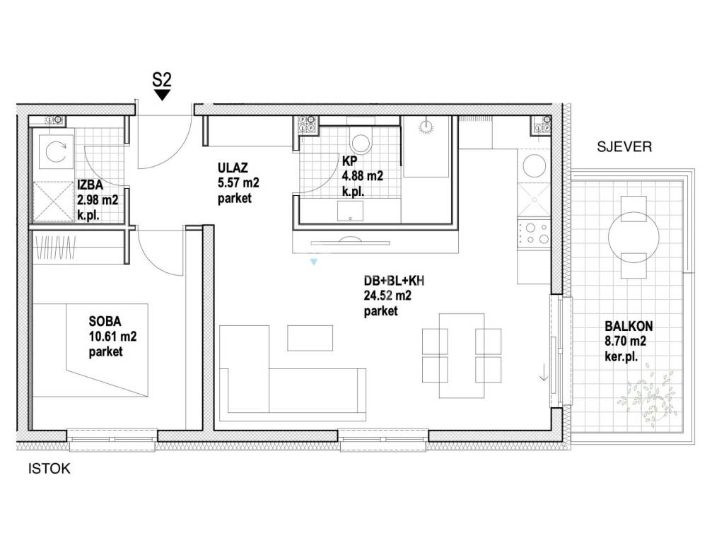
Prodaje se dvosobnistan s2 površine 52,91 m2 na 1. katu zgrade s liftom.
Useljenje je predviđeno za prosinac 2026. godine.
Stan se sastoji od dnevnog boravka s kuhinjom i blagovaonicom, spavaće sobe, kupaonice s wc-om, izbe, ulaznog hodnika i balkona.

O zgradi:
Zgrada je smještena na Samoborskoj cesti u blizini svih sadržaja bitnih za ugodan i kvalitetan život.
Građevina je stambeno poslovne namjene, a sastoji se od 5 etaža: podrum, prizemlje, 1. kat, 2. kat i uvučeni kat.
U podrumu zgrade smještena je garaža sa dvadeset (20 GPM) garažno parkirališnih mjesta te sedamnaest spremišta stanara (17 SPR.)
Svakom stanu pripada balkon ili terasa.

Uvjeti kupnje:
Obavezna kupnja garažnog parkirnog mjesta u podrumu zgrade. Cijena garaže od 23.000 naviše.
Moguće je kupiti i dodatno vanjsko parkirno mjesto po cijeni od 12.000,00

Tehnički opis:
Temeljna armirano betonska ploča, debljine 50 cm te lokalnim zadebljanjem od 80 cm, sa svim potrebnim slojevima i hidroizolacijom. Nosiva horizontalna konstrukcija svih etaža armirano betonske ploče debljine 20 cm osim djela stropne ploče podruma debljine 25 cm. Stubišta su armirano betonska debljine 18 cm. Zidovi su od A.B. debljine 20, 25 i 30 cm.
Svijetla visina od poda do stropa 260 cm
Termo fasada
PVC vanjska stolarija, trostruko IZO staklom, sa komarnicima, renomiranog proizvođača. ALU rolete sa pogonom na elektromotor.
Videoportafon
Grijanje: podno - dizalica topline + ljestve u kupaonici
Klima
Podovi: gotovi hrastovi parket, u sanitarijama su predviđene keramičke pločice I klase mogućnost odabira Na balkonima i terasama predviđene su vanjske protuklizne keramičke pločice.

KUPAC NE PLAĆA POREZ NA PROMET NEKRETNINA.

Očekivani energetski razred - A
Orijentacija: istok
Grijanje: dizalica topline
Visina stropa: 260 cm
Parking: garažno parkirno mjesto
Cijena stana:226.984,00
Cijena parkinga: počevši od 23.000

Svim svojim kupcima osiguravamo BESPLATNO kreditno posredovanje u ishođenju stambenog kredita. Sve dodatne informacije kao i dogovor oko razgledavanja nekretnine možete dobiti pozivom na broj:
091/5231454 - Marjan

LIBELIN ŠTREBERAJ

Želite znati više o tajnama tržišta nekretnina? Zanima vas koliko iznosi kapara, ili kako kupiti nekretninu putem kredita i slične teme?
Otkrijte sve to i još mnogo više u LIBELINOM ŠTREBERAJU.
Kliknite na link i započnite svoje istraživanje: Libelin Štreberaj.

#Stenjevec #špansko #malešnica #jankomir
Se quiser saber mais, pode falar com Marjan Bosak.
Características
Tipologia
Apartamento
Contrato
Venda
Andar
1 andar
Superfície
53 m²
Quartos
3
Quartos
1
Casas de banho
1
Ar condicionado
Centralizado, frio/quente
Informações de preço
Preço
€ 226.984
Preço por m²
4.283 €/m²
Eficiência energética
  • Ano de construção

    2025
  • Estado

    Novo / Em construção
  • Ar condicionado

    Centralizado, frio/quente
  • Certificação energética

    Não classificável
Descubra cada canto da propriedade
+6
Opções adicionais

Contactar o anunciante

Ou