map icon

Apartamento T4 muito bom estado, segundo andar, Tuškanac, Zagreb

ZagrebTuškanac
€ 420.000
4
112 m²
1
2

Nota

Anúncio atualizado em 16/04/2026
Descrição

This description has been translated automatically and may not be accurate

referência: 14298-1

www.biliskov.com ID-14298
Top location, near the British Square,
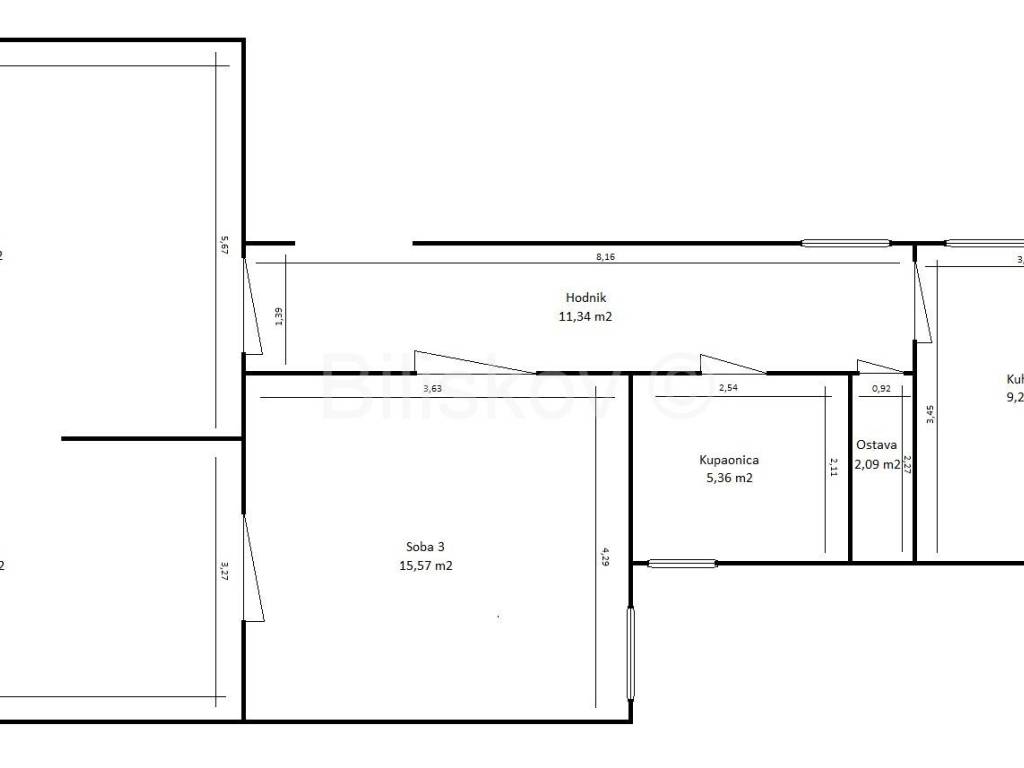
A beautiful four-room, comfortable apartment of 112 m2, on the second floor of a building that was built in 1922.
The building does not have an elevator.
The apartment was completely renovated in 2018.
The apartment consists of a living room, a kitchen, three bedrooms, a bathroom with a toilet, a storage room and a hallway. The apartment has a storage room in the attic of 20m2 and in the basement of 6m2. The ceiling height is 4m.
The apartment is bathed in light. The building is neat and located in the very center of Zagreb, a 3-minute walk from Ban Jelačić Square.
The location is great because of the proximity of infrastructure important for everyday life: kindergarten, school, health center, hospitals, shops, market, tram and bus station and access highways

EC: under construction
Orientation: East-West
Heating: gas floor
Price: 420,000
Agency fee: 2% +VAT of the achieved purchase price
Se quiser saber mais, pode falar com Emilija Živičnjak.
Características
Tipologia
Apartamento
Contrato
Venda
Andar
2 andar
Superfície
112 m²
Quartos
4
Casas de banho
1
Aquecimento
Central
Informações de preço
Preço
€ 420.000
Preço por m²
3.750 €/m²
Eficiência energética
  • Ano de construção

    1922
  • Estado

    Muito bom / Remodelado
  • Aquecimento

    Central
  • Certificação energética

    Não classificável
Descubra cada canto da propriedade
+7
Opções adicionais

Contactar o anunciante

Ou