map icon

Terreno para construção para Venda

Višnjan
€ 190.000
923 m²

Nota

Anúncio atualizado em 20/03/2026
Descrição

referência: 38200-1



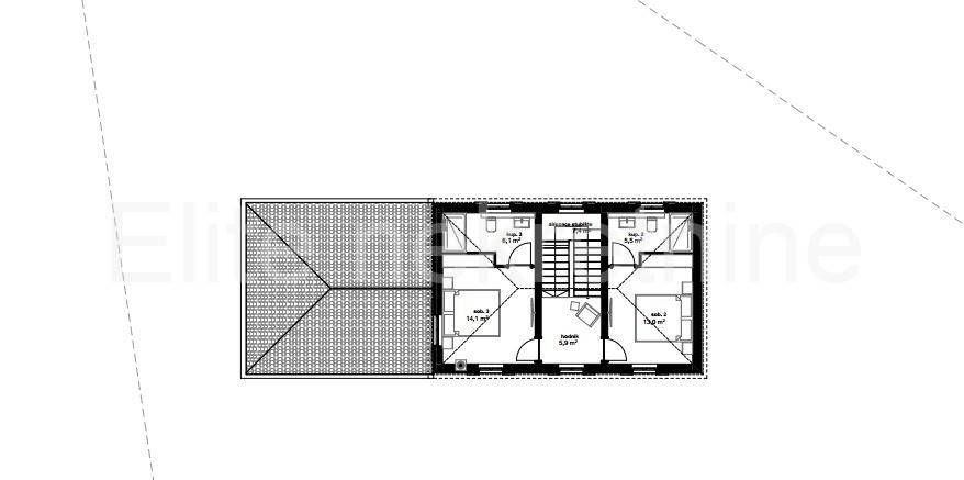
PRODAJA GRAĐEVINSKOG ZEMLJIŠTA OPĆINA VIŠNJAN, POREČ
Prodaje se građevinsko zemljište površine 920 m u općini Višnjan, nedaleko grada Poreča. U sklopu ponude uključena je projektna dokumentacija i građevinska dozvola za izgradnju moderne vile s bazenom ukupne površine 150 m.
Karakteristike: Površina zemljišta: 920 m Projekt: Vila s bazenom, 150 m, 3 sobe Lokacija: Mirno urbano istarsko selo Pogled: Otvoreni pogled na okolicu, bez neposredne gradnje Teren: Ravan, idealan za gradnju
Odlična prilika za investiciju ili izgradnju vlastitog luksuznog doma u srcu Istre!
Za više informacija i dogovor oko razgledavanja, kontaktirajte nas!

Direktni kontakt s agentom : Sandra B.+385912503331
E - mail : sandra.elitenekretnine@gmail.com
Agencijska provizija naplaćuje se u skladu s Općim uvjetima poslovanjakoji su dostupni nastraniciwww.elite-nekretnine.hr/opci-uvjeti-poslovanja.
Características
Contrato
Venda
Tipologia
Terreno para construção
Superfície
923 m²
Informações de preço
Preço
€ 190.000
Preço por m²
206 €/m²
Descubra cada canto da propriedade
+10
Opções adicionais

Contactar o anunciante

Ou