Apartamento T3 novo, rés-do-chão, Centar, Opatija

€ 727.700
3
108 m²
2
1
Sim
Terraço
Mobilado

Nota

Anúncio atualizado em 30/04/2026
Descrição

This description has been translated automatically and may not be accurate

referência: 14860

OPATIJA, LUXURIOUS APARTMENT WITH A SEA VIEW, IN A NEW RESIDENTIAL COMPLEX WITH POOL!

For sale is a luxurious apartment, 2 bedrooms + living room, in a new residential complex with a shared pool, an elevator and an underground garage located in a quiet location near the sea and the center of Opatija!

This premium property offers you modern design, luxurious elegance, privacy and comfort, and a spectacular view of the sea, and with its modern architectural style and the finest materials, it sets new standards of luxury. Thanks to its location in a quiet part of Opatija, you will enjoy a sense of privacy and peace and at the same time a stunning view of the center of Opatija and charming coast of the Adriatic Sea.

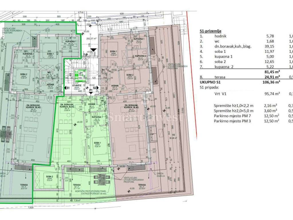
APARTMENT S1
2 bedrooms, 2 bathrooms, 1 toilet
total area of the apartment expressed with coefficients: 108.97 m2
total gross area of the apartment: 106.36 m2
internal area of the apartment: 81.45 m2
terrace: 24.91 m2
2 garage parking spaces PM7 of 12.50 m2 and PM3 od 12.50 m2
2 storage rooms with a total area of 5.76 m2
garden V1: 95.74 m2

This beautiful apartment is designed for maximum comfort and luxury. At your disposal are an entrance hall, toilet, two bedrooms with en-suite bathrooms, spacious living room with kitchen and dining area, spacious terrace and garden - an ideal place to spend time with family and friends and enjoy a truly spectacular view of the sea and Opatija.

In addition, the apartment has 2 garage parking spaces and 2 storage rooms, which gives you additional convenience.

EQUIPMENT
fan coil system for energy-efficient heating and cooling
premium aluminum carpentry
electrically operated aluminum blinds
superior sanitary facilities
anti-burglary entrance door
elevator
shared pool

This premium property offers you an incredible luxury living space with high-quality equipment and a spectacular view of the sea, and is located in the immediate vicinity of the sea and beaches and all the necessary facilities, which makes your everyday life extremely practical and comfortable.

Opatija, the pearl of the Adriatic, is one of the most sought-after and desirable places for living and vacationing in Croatia. Its irresistible combination of natural beauty, rich history and architecture, and modern facilities make it a truly extraordinary and enchanting destination.

PRICE
The stated price refers to a completely finished apartment on a turnkey basis, without furniture. The price includes 25% VAT, the buyer doesnt pay the real estate transfer tax. In case of buying on a legal entity registered in Croatia it is possible to refund full VAT after the purchase.

For more information and a viewing appointment call: +385/99/320-0008

ID CODE: 14860

Agencija Opatija
Ovlašteni posrednik
Mob: +385/99/320-0008
E-mail: office@smart-invest.hr
www.smart-invest.hr
Se quiser saber mais, pode falar com Agencija Opatija.
Características
Tipologia
Apartamento
Contrato
Venda
Andar
1
Elevador
Sim
Superfície
108 m² | comercial 203 m²
Quartos
3
Quartos
2
Casas de banho
2
Mobilado
Sim
Varanda
Não
Terraço
Sim
Estacionamento, lugares de estacionamento
1 em garagem
Ar condicionado
Ar condicionado, frio/quente
Outras características
  • Porta blindada
Detalhe da superfície

Habitação

Andar
1
Superfície
108,0 m²
Coeficiente
100%
Tipo de superfície
Principal
Sup comercial
108,0 m²

Terreno

Andar
Rés-do-chão
Superfície
95,0 m²
Coeficiente
100%
Tipo de superfície
Acessórios
Sup comercial
95,0 m²
Informações de preço
Preço
€ 727.700
Preço por m²
3.585 €/m²
Eficiência energética
  • Ano de construção

    2024
  • Estado

    Novo / Em construção
  • Ar condicionado

    Ar condicionado, frio/quente
  • Certificação energética

    Livre
Descubra cada canto da propriedade
+23
Opções adicionais

Contactar o anunciante

Ou