1/6


Apartamento T4 novo, segundo andar, Centar, Krk
Krk€ 985.000
Anúncio atualizado em 17/11/2025
Descrição
referência: 113-1011
ID CODE: 113-1011
MANOR NEKRETNINE d.o.o.
Mob: +385 99 365 7230
Tel: +385 51 504 909
E-mail: info@manor.hr
www.manor.hr
Características
- Tipologia
- Apartamento
- Contrato
- Venda
- Andar
- 2 andar
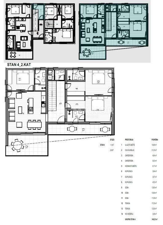
- Superfície
- 146 m²
- Quartos
- 4
- Quartos
- 3
- Casas de banho
- 3
- Varanda
- Não
- Terraço
- Sim
- Ar condicionado
- Ar condicionado, frio/quente
Informações de preço
- Preço
- € 985.000
- Preço por m²
- 6.747 €/m²
Eficiência energética
Ano de construção
2023Estado
Novo / Em construçãoAr condicionado
Ar condicionado, frio/quenteCertificação energética
Livre
Descubra cada canto da propriedade
Opções adicionais