Terreno para construção para Venda

€ 1.961.800
19.147 m²

Nota

Anúncio atualizado em 04/05/2026
Descrição

referência: 40347

ISTRA, KRNICA- građevinsko zemljište 19147m2 s prekrasnim pogledom na more za cca 10 villa sa bazenom

Građevinsko zemljište je udaljeno 200m zračne linije od mora, ima otvoreni panoramski pogled na more i južnu orijentaciju.

Zemljište je cca 10000m2 u građevinskoj zoni, dok je ostalo cca 9000m2 u zelenom pojasu (ne može se graditi - može biti dvorište, vrt, voćnjak, teniski teren, bazen ili sl)

Za građevinski dio zemljišta postoji idejni projekt za izgradnju 10 villa sa bazenom.
U 2024. godini, vlasnici su uložili značajan trud u poboljšanje faze planiranja, pažljivo se baveći svakim detaljem kako bi osigurali značajna poboljšanja. Analizirane su višestruke iteracije razvoja, a svaka verzija uključuje vrijedna poboljšanja.
Iako se proces može činiti opsežnim, vjerujemo da ovo ulaganje vremena i energije dodaje značajnu vrijednost.
Ovo je poseban projekt na jednoj od najljepših lokacija u Istri i predani smo njegovom razvoju s najvećom pažnjom i pažnjom posvećenom detaljima.
Prioritet vlasnika nije brzina, već stvaranje projekta koji je lijep, održiv, vrijedan, isplativ i funkcionalan.
S obzirom na ove ciljeve, bilo je bitno istražiti širok raspon opcija i osloniti se na stručnost iz različitih područja kako bi se oblikovao konačni dizajn.
Ovaj promišljeni, multidisciplinarni pristup osigurava da postignemo uravnotežen i utjecajan rezultat i za lokaciju i za zajednicu.

GLAVNI PLAN I POZICIONIRANJE VILE:

MAKSIMIZIRANJE KAPACITETA GOSTIJU:
Detaljni urbanistički plan (UPU) omogućuje smještaj 80 gostiju.
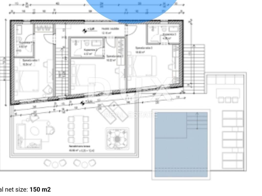
Svaka vila je u planu predviđena za smještaj 6 gostiju, ukupno 66 gostiju u 11 vila. Dodatno, prema planu, 7 vila može primiti 2 dodatna gosta (7 x 2 = 14 gostiju), čime se ukupni kapacitet povećava na 80 gostiju. U stvarnosti, svaka vila može primiti do 8 gostiju, što znači da projekt može primiti do 88 gostiju u svim vilama (8 x 11 = 88).

MAKSIMIZIRANJE POGLEDA:
Vile su smještene na različitim razinama tako da sve imaju prekrasan pogled. Vile također što je više moguće prate prirodni teren, štedeći troškove gradnje. Veliki prozori postavljeni su kako bi se osiguralo da se prekrasan pogled na okolni krajolik integrira u životni prostor, postajući značajan dio cjelokupnog iskustva.

OPTIMIZACIJA DIZAJNA ZA ISPLATIVOST:
Dizajn vila prilagođen je postojećem terenu i rasporedu ceste koliko god je to moguće kako bi se smanjili troškovi i složenost gradnje. Projekt sadrži dva tipa vila, usklađena s dizajnom ceste, dajući prioritet gradnji i funkcionalnosti.

POŠTOVANJE POTREBNIH UDALJENOSTI:
Minimalno 3 metra između vila i 4 metra od ceste u skladu je s urbanističkim propisima. Važno: To olakšava potencijalne buduće podjele na zasebne parcele (u slučaju da se odlučimo prodati vile u budućnosti) jer planiranje poštuje utvrđene udaljenosti.

UČINKOVITO KORIŠTENJE PROSTORA I ZNAČAJKI:
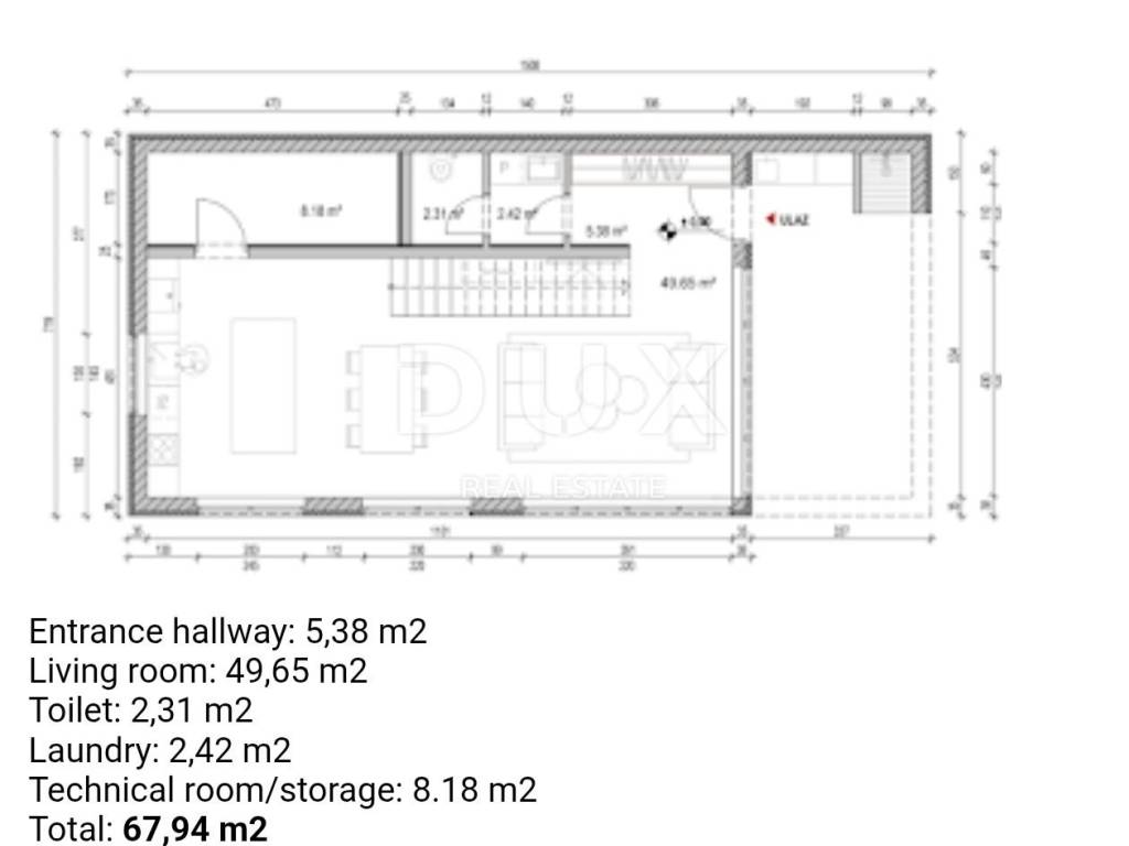
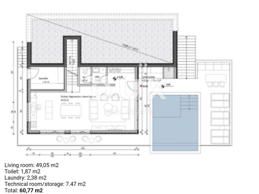
Vile su dizajnirane za optimizaciju iskorištenosti prostora (nema jako velikih vila s neiskorištenim prostorom), a istovremeno nude niz značajki, uključujući bistro s pogledom na more, privatne bazene, vanjsku blagovaonicu, kuhinju i vanjski tuš - pružajući ugodno životno iskustvo.

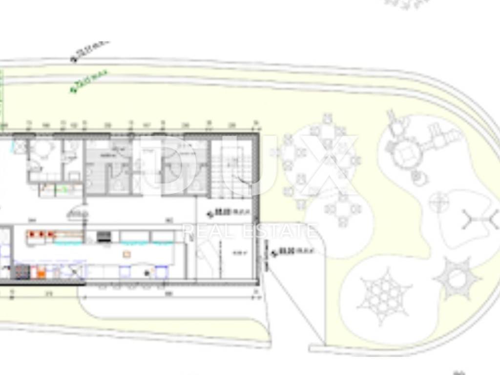
UČINKOVITO UREĐENJE OKOLIŠA NA PADINI:
Rješenje za uređenje okoliša daje prioritet zemljanim radovima s terenom i biljkama, smanjujući strukturne potporne zidove, stvarajući organskiju integraciju s okolišem i smanjujući složenost gradnje. Biljke zasađene na padinama stvorit će nevjerojatan vizualni doživljaj.

PROJEKT CESTE:
Ključni element projekta je cesta, a njezin dizajn pažljivo je razmotren s nekoliko ciljeva na umu:

USKLAĐENOST S PROPISIMA:
Cesta je projektirana u skladu sa svim relevantnim propisima, što povećava vjerojatnost budućeg preuzimanja od strane općine (isto kao i Laguna Marina), što bi dugoročno moglo koristiti projektu.

LAK PRISTUP:
Osiguravanje udobnosti i lakoće navigacije cestom ključno je. Projekt ceste daje prioritet nesmetanom pristupu vilama.
To značajno poboljšava cjelokupno iskustvo za stanovnike i goste.

INTEGRACIJA S TERENOM:
Raspored ceste prati prirodne uzvisine terena kako bi se smanjila potreba za opsežnim zemljanim radovima.
To smanjuje troškove i čuva prirodnu ljepotu lokacije.
Pristup budućem razvoju (poljoprivredno zemljište)
Konačni dizajn ceste, u usporedbi s početnim verzijama, u potpunosti je integriran u teren, poboljšavajući udobnost korisnika i ukupnu estetsku privlačnost projekta.

VAŽNO: također jamči pristup zemljištu koje bi se moglo razviti u budućnosti.

Ključna prednost za investitore: Odobreni UPU omogućuje investitorima da izravno prijeđu na glavnu fazu projektiranja i uz dozvole podnesu zahtjev za HBOR-ov program financiranja održivog turizma - koji nudi do 50% nepovratnog financiranja.

Teren je smješten na brežuljku.
Teren se nalazi na tihoj i mirnoj poziciji i odmah do puta.
Sve komunalije do terena.
Čisto i uredno vlasništvo.
Teren je očišćen i spreman za gradnju.

Buduće izgrađena nekretnina na ovoj parceli bi imala panoramski otvoreni pogled na more, zaljev i otoke čak iz prizemlja!

Nekretnina sa koje ste pješice do mora i plaže zaista za jednu minutu!

Dobra prilika za investitore koji se bave izgradnjom apartmana / kuća za iznajmljivanje sa bazenom.

NEKRETNINA NA ODLIČNOJ JEDINSTVENOJ LOKACIJI S VELIKIM POTENCIJALOM!!!

Poštovani klijenti, agencijska provizija naplaćuje se u skladu s Općim uvjetima poslovanja:
www.dux-nekretnine.hr/opci-uvjeti-poslovanja

ID KOD AGENCIJE: 40347

Patrik Hrštić
Agent s licencom
Mob: +385 91 270 3979
Tel: +385 91 480 8808
E-mail: patrik@dux-nekretnine.hr
www.dux-opatija.com
Se quiser saber mais, pode falar com Patrik Hrštić.
Características
Contrato
Venda
Tipologia
Terreno para construção
Superfície
19.147 m²
Informações de preço
Preço
€ 1.961.800
Preço por m²
102 €/m²
Descubra cada canto da propriedade
+23
Opções adicionais

Contactar o anunciante

Ou