Apartamento T3 novo, primeiro andar, Centar, Luka, Finida, Umag

€ 282.000
3
81 m²
2
1
Sim
Varanda
Mobilado

Nota

Anúncio atualizado em 07/05/2026
Descrição

This description has been translated automatically and may not be accurate

referência: 38355

ISTRIA, UMAG - Superior 2 bedroom apartment with balcony - Luxury new building

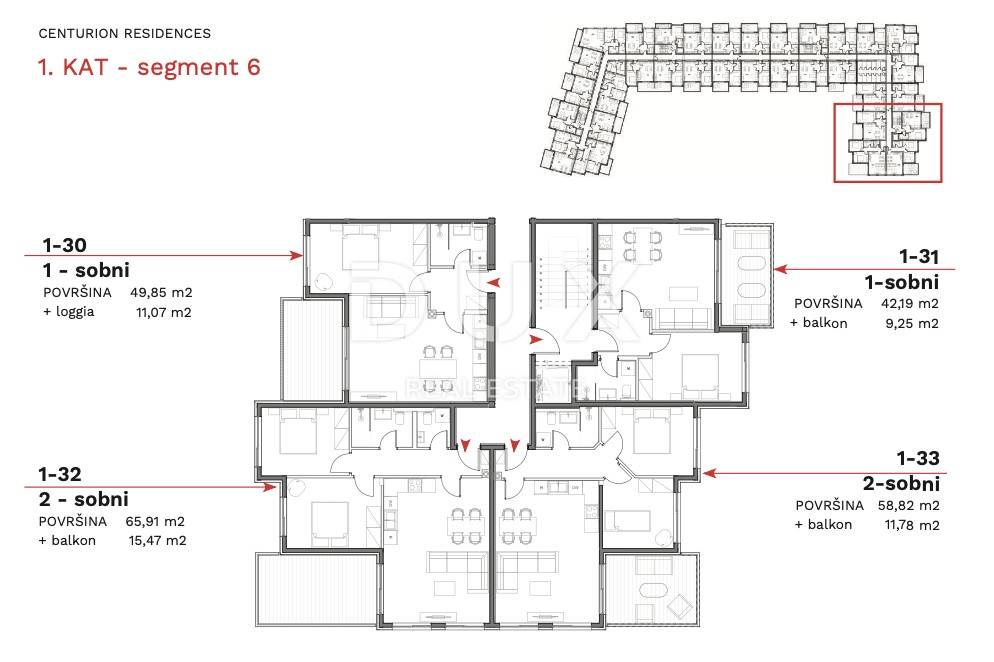
We proudly present to you an exclusive two bedroom apartment with an elevator in one of the most prestigious new buildings in Umag. This spacious apartment with a total area of 77 m2 is located on the first floor of this imposing residential building. The apartment offers elegance and comfort, it consists of a spacious living room with a modern kitchen, two luxurious bedrooms, two elegant bathrooms, and a balcony of 16 square meters. The apartment comes with a storage area of 4.90 m2, one covered parking space and one garage parking space, making your daily life extremely practical. This apartment building was built with a professional approach and attention to detail. The building is designed from reinforced concrete monolithic construction with mezzanine panels for additional safety and stability. Inside the apartments, partition walls are made with double-thick plasterboard coverings, providing excellent thermal and sound insulation. The facade cladding is in the ETICS system with thermal insulation 10 cm thick, ensuring energy efficiency. New generation high-quality PVC carpentry with electric blinds provides additional comfort and safety. Each apartment is equipped with a top multisplit heating and cooling system, ensuring perfect temperature and economy. The apartments have their own meters for water and electricity, and sanitary water is heated using an electric boiler. In addition, each apartment has a telephone, antenna, TV and Internet connection, with a built-in video intercom for greater security. The apartment is covered with high-quality parquet in the rooms and living room, while the corridors and hallways are equipped with elegant tiles. With the highest quality materials and equipment, this apartment not only provides extraordinary comfort for living, but is also ideal for renting for tourist purposes. The planned completion of construction is in the middle of 2025, which will allow you to quickly enjoy all the advantages of this luxury apartment. The location is perfect, just 700 meters from the sea and the center of Umag, which allows you to enjoy all the charms of this beautiful Mediterranean city. General specifications of the building: Ground floor: - 1x studio apartment with garden - 18x apartments with one bedroom, living room, terrace and garden - 5x apartments with two bedrooms, living room, terrace and garden - 43x storage room 1st floor: - 26x apartments with with one bedroom, living room, terrace and garden - 7x apartments with two bedrooms, living room, terrace and garden - 16x storage room 2nd floor: - 26x apartments with one bedroom, living room, terrace and garden - 7x apartments with two bedrooms, living room, terrace and garden - 16x storage room 3rd floor: - 24x apartments with one bedroom, living room and balcony - 7x apartments with two bedrooms, living room and balcony - 1x apartment with three bedrooms, living room , balcony and loggia - 14x storage room Underground garage: - 74 parking spaces - 33 storage spaces Ground parking: - 26 covered parking spaces - 82 uncovered parking spaces Do not miss the opportunity to become the proud owner of this luxury apartment in Umag and enjoy an exclusive life experience in one of the most attractive new buildings on the market. For additional information and viewing of the apartment, contact our agency today.

Dear clients, the agency commission is charged in accordance with the General Terms and Conditions. www.dux-nekretnine.hr/opci-uvjeti-poslovanja

ID CODE: 38355

Evan Beaković
Agent s licencom
Mob: +385 91 54 833 54
Tel: +385 91 480 8808
E-mail: evan@dux-nekretnine.hr
www.dux-istra.com
Se quiser saber mais, pode falar com Evan Beaković.
Características
Tipologia
Apartamento
Contrato
Venda
Andar
1 andar
Elevador
Sim
Superfície
81 m²
Quartos
3
Quartos
2
Casas de banho
2
Mobilado
Sim
Varanda
Sim
Terraço
Não
Estacionamento, lugares de estacionamento
1 em garagem
Ar condicionado
Ar condicionado, frio/quente
Informações de preço
Preço
€ 282.000
Preço por m²
3.481 €/m²
Eficiência energética

Consumo de energia

A

Descubra cada canto da propriedade
+23
Opções adicionais

Contactar o anunciante

Ou