map icon

Apartamento T3 novo, rés-do-chão, Cres

Cres
€ 385.000
3
92 m²
1
1
Terraço

Nota

Anúncio atualizado em 17/11/2025
Descrição

This description has been translated automatically and may not be accurate

referência: 37079

ISLAND OF CRES, CRES - Modern apartment with private garden

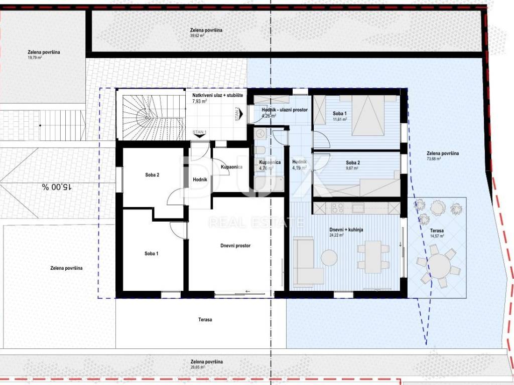
OPPORTUNITY ON CRES!! A modern new building with only 3 residential units is under construction. It is located on the edge of the green belt and offers a beautiful panoramic view of the sea and the Cres Bay. The new building will have garage spaces, which is a rarity in the area! The house extends over three floors: a dug-in garage with storage rooms, a ground floor consisting of two smaller apartments and a first floor with a panoramic view. Apartment 2 on the ground floor, with a living area of 58.71 m2, consists of an entrance area, hallway, two bedrooms, bathroom and a living area with a kitchen, dining room and a place to relax. The living area leads to the outdoor area, where there is a paved terrace and a beautiful green garden of 74 m2. The garage of this apartment has 2 parking spaces and a storage room of 10.67 m2. The planned completion of the works is in spring 2026. Be ready to welcome summer in a modern new building in the town of Cres itself!

***
Dear clients, the agency commission is charged in accordance with the General Terms and Conditions: www.dux-nekretnine.hr/opci-uvjeti-poslovanja

ID CODE: 37079

Iva Mršić
Agent s licencom
Mob: +385 91 575 9388
Tel: +385 91 480 8808
E-mail: iva@dux-nekretnine.hr
www.dux-krk.com
Se quiser saber mais, pode falar com Iva Mršić.
Características
Tipologia
Apartamento
Contrato
Venda
Andar
1
Superfície
92 m² | comercial 181 m²
Quartos
3
Quartos
2
Casas de banho
1
Varanda
Não
Terraço
Sim
Estacionamento, lugares de estacionamento
1 em garagem
Detalhe da superfície

Habitação

Andar
1
Superfície
92,0 m²
Coeficiente
100%
Tipo de superfície
Principal
Sup comercial
92,0 m²

Terreno

Andar
Rés-do-chão
Superfície
89,0 m²
Coeficiente
100%
Tipo de superfície
Acessórios
Sup comercial
89,0 m²
Informações de preço
Preço
€ 385.000
Preço por m²
2.127 €/m²
Eficiência energética
  • Ano de construção

    2025
  • Estado

    Novo / Em construção
  • Certificação energética

    Livre
Descubra cada canto da propriedade
+5
Opções adicionais

Contactar o anunciante

Ou