Vivenda familiar 130 m², nova, Labin

€ 340.000
3
130 m²
2

Nota

Anúncio atualizado em 04/02/2026
Descrição

This description has been translated automatically and may not be accurate

referência: 36838

ISTRIA, LABIN - House with swimming pool

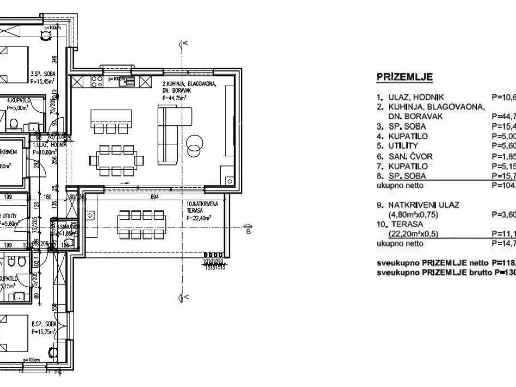
On the southeastern coast of Istria, at the place where the green hills meet the sea, where nature and heritage come together, there are two towns of similar size, but with different but mutually complementary characters - Labin and Rabac. The picturesque town of Labin rises on a hill 320 m high, only five kilometers from the white pebble beaches in Rabac. Intertwined with rich history and mining that marked this region, Labin, which was declared an independent republic for a short time, is today a fascinating city of contradictions; old and new, history and present, tourism and art. In the vicinity of the town of Labin, a house with a swimming pool is for sale. The property represents a fusion of modern architecture and natural environment, and the quality of construction guarantees long-term satisfaction and quality of housing. The house is designed as one residential unit that extends through one floor with a clearly defined floor plan that is divided into living and sleeping areas. The living area consists of a kitchen, dining room and living room with access to a covered terrace with a summer kitchen, while the night area consists of two bedrooms with private bathrooms. The floor plan is complemented by a hallway, a guest toilet and a storage room. The stated price refers to the high-quality construction of the residential building, which includes preparatory work, excavation and installation of foundations, construction of external and partition walls, roofing and sheet metal work and external carpentry, facade and installation work. Finishing work in the interior is not included in the price. The possibility of buying a property in the final stage of construction without furniture with a landscaped garden with a price correction. The excellent location and the spatial organization of the interior and exterior of this property provide an opportunity for a comfortable family life or an investment investment in a tourist rental business.

Dear clients, the agency commission is charged in accordance with the General Business Conditions: www.dux-nekretnine.hr/opci-uvjeti-poslovanja

ID CODE: 36838

Iva Zajc
Agent s licencom
Mob: +385 92 235 9472
Tel: +385 91 480 8808
E-mail: iva@dux-istra.com
www.dux-istra.com
Se quiser saber mais, pode falar com Iva Zajc.
Características
Tipologia
Vivenda familiar
Contrato
Venda
Andar
1
Superfície
130 m² | comercial 764 m²
Quartos
3
Quartos
2
Casas de banho
2
Varanda
Não
Terraço
Não
Outras características
  • Piscina
Detalhe da superfície

Habitação

Andar
1
Superfície
130,0 m²
Coeficiente
100%
Tipo de superfície
Principal
Sup comercial
130,0 m²

Terreno

Andar
Rés-do-chão
Superfície
634,0 m²
Coeficiente
100%
Tipo de superfície
Acessórios
Sup comercial
634,0 m²
Informações de preço
Preço
€ 340.000
Preço por m²
445 €/m²
Eficiência energética
  • Ano de construção

    2024
  • Estado

    Novo / Em construção
  • Certificação energética

    Livre
Descubra cada canto da propriedade
+3
Opções adicionais

Contactar o anunciante

Ou