Apartamento T3 novo, rés-do-chão, Zapad, Opatija

€ 346.800
3
69 m²
2
1
Sim
Varanda
Terraço

Nota

Anúncio atualizado em 06/05/2026
Descrição

This description has been translated automatically and may not be accurate

referência: 35824


OPATIJA, IKA - Ideal floor plan apartment with a covered terrace and spectacular sea views

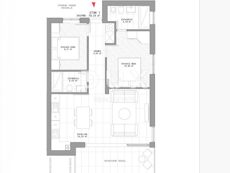
Exclusively, only in our offer, DUX presents a fantastic opportunity to purchase a new building in Opatija with optimal square footage. Apartment S1 consists of a hallway, two bedrooms, two bathrooms, and a living room connected to the kitchen, dining room, and terrace.

The fantastic advantages of this building include:

Ideal floor plans
South-facing living room with access to the terrace
Covered terraces with sea views
Top quality parquet, ceramics, sanitary ware, and doors
Aluminum joinery
Large sliding walls
Two parking spaces are included in the purchase price. All apartments offer a quality view of the sea.

The building is located in a quiet and private street without active traffic, only 400 m as the crow flies from the sea. This position under construction is currently one of the rare opportunities for the realization of a new building with optimal square footage in Opatija.

The future owner can walk to the beach in ten minutes, the drive to the beach takes only two minutes, and the center of Opatija in eight minutes.

This property is being sold "turnkey," which means that the apartment is furnished and ready to move in. The planned move-in is in the summer of 2026.

To arrange a visit to the property, call the agent with confidence - consultation in German is possible.

Dear clients, the agency commission is charged in accordance with the General Terms and Conditions:
www.dux-nekretnine.hr/opci-uvjeti-poslovanja

ID CODE: 35824

Marko Šutanovac
Agent s licencom
Mob: +385 91 189 8332
Tel: +385 91 480 8808
E-mail: marko@dux-nekretnine.hr
www.dux-opatija.com
Se quiser saber mais, pode falar com Marko Šutanovac.
Características
Tipologia
Apartamento
Contrato
Venda
Andar
1
Elevador
Sim
Superfície
69 m² | comercial 1.269 m²
Quartos
3
Quartos
2
Casas de banho
2
Varanda
Sim
Terraço
Sim
Detalhe da superfície

Habitação

Andar
1
Superfície
69,0 m²
Coeficiente
100%
Tipo de superfície
Principal
Sup comercial
69,0 m²

Terreno

Andar
Rés-do-chão
Superfície
1.200,0 m²
Coeficiente
100%
Tipo de superfície
Acessórios
Sup comercial
1.200,0 m²
Informações de preço
Preço
€ 346.800
Preço por m²
273 €/m²
Eficiência energética

Consumo de energia

A+

Descubra cada canto da propriedade
+18
Opções adicionais

Contactar o anunciante

Ou