Terreno para construção para Venda

€ 73.000
620 m²

Nota

Anúncio atualizado em 27/03/2026
Descrição

referência: 35754

ISTRA, RABAC - Zemljište s građevinskom dozvolom i pogledom na more

Na jugoistočnoj obali Istre na mjestu gdje se zeleni brežuljci sastaju s morem, tamo gdje se sjedinjuju priroda i baština, na samo četiri kilometara udaljenosti nalaze se dva gradića s različitim ali međusobno nadopunjujućim karakterom - Labin i Rabac.
Rabac, zbog bijelih šljunčanih plaža, bogatog mediteranskog raslinja i kristalno čistog i bistrog mora, nazvan je biserom Kvarnera. Nekad malo ribarsko mjesto, danas je Rabac atraktivno turističko odredište koje u mreži živopisnih uličica krije obilje kulturnih događanja. Zeleno okruženje Rapca i pitoreskno zaleđe poziva na avanturu, istraživanje i rekreaciju tijekom cijele godine.

Nedaleko Rapca i Labina, na prodaju je zemljište s građevinskom dozvolom i pogledom na more.
Zemljište se nalazi u pitomom naselju s kućama za odmor i obiteljskim kućama nudeći pritom savršenu ravnotežu ruralnog okruženja i blizine mora i urbanih sadržaja.
Katastarska čestica je pravilnog oblika, teren je u blagom padu, pristupa mu se urednim makadamskim putem a priključci vode i struje nalaze se uz zemljište.
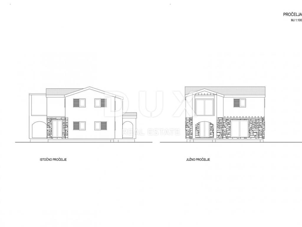
Zemljište ima građevinsku dozvolu i prijavljen početak gradnje za gradnju građevine stambene namjene i bazena s plaćenim komunalnim i vodnim doprinosima a izgrađeni su i temelji.
Projektom je predviđena gradnja atraktivne montažne kuće mediteranske elegancije koja se svojim izgledom i stilom uklopa u postojeći ambijent i raskošan krajolik.

Ovo zemljište pruža izuzetnu priliku za gradnju obiteljskog doma ili kuće za odmor.

Poštovani klijenti, agencijska provizija naplaćuje se u skladu s Općim uvjetima poslovanja:
http://www.dux-nekretnine.hr/opci-uvjeti-poslovanja

ID KOD AGENCIJE: 35754

Iva Zajc
Agent s licencom
Mob: +385 92 235 9472
Tel: +385 91 480 8808
E-mail: iva@dux-istra.com
www.dux-istra.com
Se quiser saber mais, pode falar com Iva Zajc.
Características
Contrato
Venda
Tipologia
Terreno para construção
Superfície
620 m²
Informações de preço
Preço
€ 73.000
Preço por m²
118 €/m²
Descubra cada canto da propriedade
+8
Opções adicionais

Contactar o anunciante

Ou