map icon

Vivenda familiar 158 m², nova, Centar, Krk

Krk
€ 650.000
5
158 m²
3+
Sim
Varanda
Terraço
Mobilado

Nota

Anúncio atualizado em 17/11/2025
Descrição

This description has been translated automatically and may not be accurate

referência: 33288

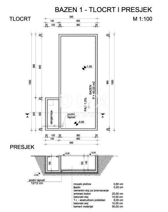
KRK ISLAND, BRZAC - Semi-detached house of modern design with swimming pool 40m2

Are you looking for a unique property for vacation or living or investment? This semi-detached house under construction, with planned completion by the summer of 2025, is ideal for you! Located in a quiet location, 750 m from the sea, it offers everything you need for perfect comfort. It covers 158 m2 and offers a perfectly designed interior! On the ground floor there is a spacious living room with kitchen and dining room in an open-space style, with access to a beautiful covered terrace. There is also one bedroom with a bathroom, a laundry room and a sauna with a shower! Do you want privacy and luxury? Upstairs, three bedrooms await you, each with its own bathroom, and one even has access to its own loggia a perfect place for morning coffee with a view of the sea! The yard is a real oasis! You will enjoy the heated swimming pool of 40 m2 with sun deck and barbecue. Two parking spaces are included! The quality of construction is at the highest level - underfloor heating with a heat pump, air conditioners in all rooms, PVC joinery, alarm and video surveillance, heated pool with its own heat pump. Safety and comfort in every corner! VAT is included in the price, and the buyer does not pay real estate sales tax! Don't miss this opportunity - just a step away from you and choose the option of furnishing your home to your own taste!

Dear clients, the agency commission is charged in accordance with the General Business Conditions www.dux-nekretnine.hr/opci-uvjeti-poslovanja

ID CODE: 33288

Iva Mršić
Agent s licencom
Mob: +385 91 575 9388
Tel: +385 91 480 8808
E-mail: iva@dux-nekretnine.hr
www.dux-krk.com
Se quiser saber mais, pode falar com Iva Mršić.
Características
Tipologia
Vivenda familiar
Contrato
Venda
Elevador
Sim
Superfície
158 m²
Quartos
5
Quartos
4
Casas de banho
3+
Mobilado
Sim
Varanda
Sim
Terraço
Sim
Ar condicionado
Ar condicionado, frio/quente
Outras características
  • Piscina
Informações de preço
Preço
€ 650.000
Preço por m²
4.114 €/m²
Eficiência energética
  • Ano de construção

    2024
  • Estado

    Novo / Em construção
  • Ar condicionado

    Ar condicionado, frio/quente
  • Certificação energética

    Livre
Descubra cada canto da propriedade
+11
Opções adicionais

Contactar o anunciante

Ou