Vivenda familiar 348 m², nova, Centar, Opatija

€ 1
5
348 m²
3+
Sim
Varanda
Terraço

Nota

Anúncio atualizado em 30/04/2026
Descrição

This description has been translated automatically and may not be accurate

referência: 28813

OPATIJA, CENTER - beautiful luxury villa above the center of Opatija with a panoramic view of the sea and a large garden

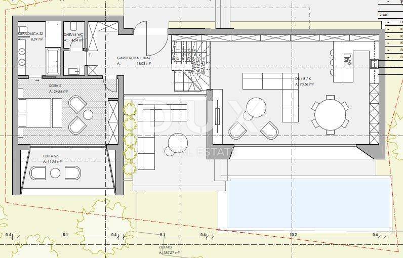
We present a special villa located on the Opatija Riviera above the very center of this beautiful city, only 470 meters as the crow flies from the sea, with a panoramic view of the sea, islands and mountains , with a beautiful large garden of 930 m2 and a swimming pool. It is a beautiful luxury villa on 3 floors, and consists of a spacious hallway, a wonderful and illuminated open space living room that communicates with the kitchen and dining room, from which there is a magnificent view of the sea through the glass walls. We emphasize that the master bedroom with en suite bathroom extends over the entire first floor and has a loggia of 11 m2. A large staircase leads to the 2nd floor with 2 luxurious bedrooms with en suite bathrooms, and each room is south-facing and has a beautiful view of the sea. Another bedroom with an en suite bathroom is located in the basement and has a nice view of the garden and pool, and on this level there is also a fitness room and a storage room. The special feature of this property is its quality construction and exceptional location near the center of Opatija, the Lungomare promenade, the Summer Stage and all the accompanying facilities. The villa will be built surrounded by lush greenery in a quiet cul-de-sac and will thus ensure privacy and comfort along with a wonderful experience of the Kvarner bay. The villa is located just a 1-minute drive from the center of Opatija and Slatina beach, thus ensuring a perfect stay and life in the beauty of the Adriatic - Opatija. Dear clients, the agency commission is charged in accordance with the General Terms and Conditions. https://www.dux-nekretnine.hr/opci-uvjeti-poslovanja

ID CODE: 28813

Marko Šutanovac
Agent s licencom
Mob: +385 91 189 8332
Tel: +385 91 480 8808
E-mail: marko@dux-nekretnine.hr
www.dux-opatija.com
Se quiser saber mais, pode falar com Marko Šutanovac.
Características
Tipologia
Vivenda familiar
Contrato
Venda
Andar
1
Elevador
Sim
Superfície
348 m² | comercial 1.268 m²
Quartos
5
Quartos
4
Casas de banho
3+
Varanda
Sim
Terraço
Sim
Ar condicionado
Ar condicionado, frio/quente
Outras características
  • Piscina
Detalhe da superfície

Habitação

Andar
1
Superfície
348,0 m²
Coeficiente
100%
Tipo de superfície
Principal
Sup comercial
348,0 m²

Terreno

Andar
Rés-do-chão
Superfície
920,0 m²
Coeficiente
100%
Tipo de superfície
Acessórios
Sup comercial
920,0 m²
Informações de preço
Preço
€ 1
Preço por m²
0 €/m²
Eficiência energética

Consumo de energia

A+

Descubra cada canto da propriedade
+23
Opções adicionais

Contactar o anunciante

Ou