Terreno para construção para Venda

€ 3.000.000
10.000 m²

Nota

Anúncio atualizado em 03/03/2026
Descrição

referência: 28564

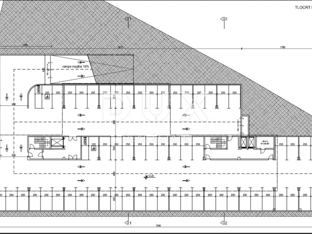
ZAGREB, JANKOMIR- građevinsko zemljište 10000m2 s idejnim projektom za poslovnu namjenu/halu

Veličina parcele je 10.000 m2 od čega za izgradnju iznosi 3382 m2.

Čestica je trokutastog oblika.
Visina građevine od uređenog terena iznosi 16,5 m.

Na parceli se planira graditi poslovna građevina, sa 4 poslovna prostora, za što postoji idejni projekat.
Planirana zgrada ima 5646m2 BRUTTO RAZVIJENE POVRŠINE, odnosno 4263m2 NETTO RAZVIJENE POVRŠINE.

Građevina je po katnosti PODRUM + PRIZEMLJE + 1. KAT + 2.KAT + 3.KAT (zadnji uvučeni kat).
U podrumu se nalaze parking i instalacije.
U prizemlju su ulaz i poslovni prostor PP1.
Na 1. katu je poslovni prostor PP2.
Na 2.katu je poslovni prostor PP3.
Na 3. katu je poslovni prostor PP4.

Dobra prilika za investitore koji se bave izgradnjom poslovnih zgrada / hala.

NEKRETNINA NA TOP LOKACIJI S VELIKIM POTENCIJALOM ZA OZBILJNE INVESTITORE!!!

Poštovani klijenti, agencijska provizija naplaćuje se u skladu s Općim uvjetima poslovanja:
www.dux-nekretnine.hr/opci-uvjeti-poslovanja

Poštovani potencijalni kupci, najmoprimci i zakupoprimci,
razgledavanje nekretnine koja vas zanima i za koju imate interes moguće je jedino i isključivo uz potpis Ugovora o posredovanju nekretnina, i to u svrhu zaštite vlasnika nekretnine od posjeta neregistriranih osoba, a i u skladu sa Zakonom o zaštiti podataka i Zakonom o posredovanju u prometu nekretnina.
Pri razgledavanju svake nekretnine potencijalni kupac/najmoprimatelj/ zakupoprimac je obavezan ispuniti i potpisati Ugovor o posredovanju nekkretnina u kojem je navedeno sljedeće:
- osnovni podaci o potencijalnom kupcu/najmoprimatelju/ zakupoprimacu
- osnovni podaci o agenciji
- iznos agencijske provizije
Agencijska provizija za kupca iznosi 3% (+25% PDV) od ukupno dogovorene kupoprodajne cijene.
Agencijska provizija za najmoprimca/zakupnika iznosi jednu mjesečnu najamninu/zakupninu (+ 25% PDV).

ID KOD AGENCIJE: 28564

Patrik Hrštić
Agent s licencom
Mob: +385 91 270 3979
Tel: +385 91 480 8808
E-mail: patrik@dux-nekretnine.hr
www.dux-opatija.com

Josip Gudeljević
Agent s licencom
Mob: +385 91 392 5735
Tel: +385 91 480 8808
E-mail: josip@dux-nekretnine.hr
www.dux-opatija.com
Se quiser saber mais, pode falar com Patrik Hrštić.
Características
Contrato
Venda
Tipologia
Terreno para construção
Superfície
10.000 m²
Informações de preço
Preço
€ 3.000.000
Preço por m²
300 €/m²
Opções adicionais

Contactar o anunciante

Ou