Apartamento T4 novo, rés-do-chão, Luka, Poreč

€ 355.000
4
85 m²
1
r/c
Sim
Terraço

Nota

Anúncio atualizado em 04/02/2026
Descrição

This description has been translated automatically and may not be accurate

referência: 28298

ISTRIA, POREČ - Luxurious apartment on the ground floor with a garden

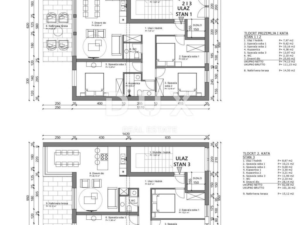
Surrounded by a pleasant Mediterranean climate, located in the heart of the western coast of Istria, the ancient town of Poreč and its coast of preserved natural beauty, landscaped parks, pine and oak groves that reach to the sea itself, along which alternate clean sea, beaches, bays and islands spread over an area of 139 km and consists of 58 settlements. With the identity of an urban coastal city, Poreč is a city of culture, sports, entertainment, tourism and genuine hospitality. One of the most attractive cities of Croatian tourism that uniquely combines the natural beauty of Istria, rich cultural and historical heritage and the most modern amenities of a top tourist destination. The harmony of the old town core, which is a cultural monument, with one of the most famous Istrian cultural monuments, the Euphrasian Basilica, which is on the UNESCO World Heritage List, and the most organized and best equipped tourist resorts on the Adriatic forms a mosaic of unforgettable experiences. Poreč is also a city that is much more than a summer destination of sun and sea. Poreč is a city tailored to man. A city where there is a constant impulse for better living conditions and greater progress in various spheres. A city that is a pleasant, safe and well-organized place to live where everyone can find their place, a city without surcharges with high social sensitivity for all generations. This beautiful apartment is for sale in a modern building only 1000 m from the sea. It is located on the ground floor and has a total area of approx. 85 m2 and a net area of 74 m2 with a covered terrace of 14 m2. The apartment consists of a hallway, a kitchen with a dining room and a living room, a guest toilet, three bedrooms, a bathroom and a covered terrace. The apartment will have about 50 m2 of garden and one parking space. Electric underfloor heating and air conditioning will be installed in the apartment. The property is subject to VAT. The planned completion of construction is at the end of 2024. Due to its attractive location and proximity to the sea, this property is an ideal investment for both tourist rental and family life. Dear clients, the agency commission is charged in accordance with the General Business Conditions: www.dux-nekretnine.hr/opci-uvjeti-poslovanja

ID CODE: 28298

Iva Zajc
Agent s licencom
Mob: +385 92 235 9472
Tel: +385 91 480 8808
E-mail: iva@dux-istra.com
www.dux-istra.com
Se quiser saber mais, pode falar com Iva Zajc.
Características
Tipologia
Apartamento
Contrato
Venda
Andar
Rés-do-chão
Elevador
Sim
Superfície
85 m²
Quartos
4
Quartos
3
Casas de banho
1
Varanda
Não
Terraço
Sim
Ar condicionado
Ar condicionado, frio/quente
Informações de preço
Preço
€ 355.000
Preço por m²
4.176 €/m²
Eficiência energética

Consumo de energia

A+

Descubra cada canto da propriedade
+4
Opções adicionais

Contactar o anunciante

Ou